Te koop Bouwgrond

Beschrijving van   

Vergelijk realty's

Te koop Bouwgrond

Bouwgrond Bouwgrond Bouwgrond Bouwgrond Bouwgrond Bouwgrond Bouwgrond Bouwgrond Bouwgrond
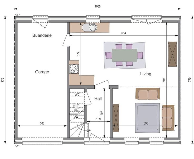
Ceci est une idée de projet, avec une liberté totale de modification pour construire la maison de vos rêves. Nous vous proposons ce projet sur un superbe terrain à bâtir, situé à Huy. Ce terrain possède une superficie de 295m², une façade de 11mètres et une profondeur de 27mètres. L'emplacement de ce terrain est très avantageux, à seulement 1min d'un arrêt de bus et à moins de 5 minutes des commodités. De plus, l'accès à l'autoroute E42 est à moins de 10 minutes, ce qui permet de rejoindre Namur et Liège en un rien de temps. Ce terrain vous est proposé avec un projet de construction d'une maison 2 façades. Description du projet proposé, Maison 2 façades de 155m2 : Un rez-de-chaussée incluant un garage pour un véhicule, une buanderie, un hall d'entrée avec wc, menant à un séjour lumineux et à une cuisine fonctionnelle. À l'étage, un hall de nuit vous conduira à 4 chambres à coucher, ainsi qu'une salle de bains élégante et une salle de douche. Le projet est entièrement modulable et personnalisable en fonction de la personnalisation du projet. Prix : terrain + projet de construction : 241 656€ Hors frais Le prix est donné à titre indicatif et pourra être modifié en fonction des ajustements apportés au projet. Pour plus de renseignements, nous restons disponibles durant les heures de bureau.
Type vastgoed Grond
Prijs 49.000