Te koop Te renoveren woning met opslagplaats en tu...

Beschrijving van   

Vergelijk realty's

Te koop Te renoveren woning met opslagplaats en tuin nabij Aalst!

Te renoveren woning met opslagplaats en tuin nabij Aalst! Te renoveren woning met opslagplaats en tuin nabij Aalst! Te renoveren woning met opslagplaats en tuin nabij Aalst! Te renoveren woning met opslagplaats en tuin nabij Aalst! Te renoveren woning met opslagplaats en tuin nabij Aalst! Te renoveren woning met opslagplaats en tuin nabij Aalst! Te renoveren woning met opslagplaats en tuin nabij Aalst! Te renoveren woning met opslagplaats en tuin nabij Aalst! Te renoveren woning met opslagplaats en tuin nabij Aalst! Te renoveren woning met opslagplaats en tuin nabij Aalst! Te renoveren woning met opslagplaats en tuin nabij Aalst! Te renoveren woning met opslagplaats en tuin nabij Aalst! Te renoveren woning met opslagplaats en tuin nabij Aalst! Te renoveren woning met opslagplaats en tuin nabij Aalst! Te renoveren woning met opslagplaats en tuin nabij Aalst! Te renoveren woning met opslagplaats en tuin nabij Aalst! Te renoveren woning met opslagplaats en tuin nabij Aalst!
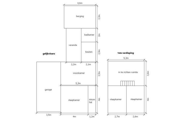
Deze charmante woning beschikt op het gelijkvloers over een inkomhal, een gezellige woonkamer, in te richten keuken, een ruime slaapkamer en een veranda met zicht op het terras. Aansluitend aan de veranda bevindt zich een praktische berging. De badkamer is uitgerust met een ligbad, lavabo en toilet. Op de eerste verdieping zijn er twee slaapkamers en een extra in te richten ruimte, ideaal als derde slaapkamer, bureau of hobbykamer. Een grote troef is de grote garage/opslagplaats, perfect voor het parkeren van een wagen en extra opslagruimte. Achter de woning ligt een prachtige tuin met terras. Daarnaast zijn er diverse bijgebouwen, ideaal voor het opbergen van gereedschap, tuinmeubilair of het inrichten van een werkplaats. Deze op te knappen woning heeft bijzonder veel potentieel en is rustig gelegen, terwijl Moorsel-dorp en het centrum van Aalst vlot bereikbaar zijn. Voor meer info en/of een bezoek, contacteer ons via june@immotijl.be of 0486 17 07 61.
Type vastgoed Huis
Prijs 235.000
Bewoonbare opp. 85
Aantal slaapkamers 3
Aantal badkamers 1