Te koop Bouwgrond

Beschrijving van   

Vergelijk realty's

Te koop Bouwgrond

Bouwgrond Bouwgrond Bouwgrond Bouwgrond Bouwgrond Bouwgrond Bouwgrond Bouwgrond Bouwgrond Bouwgrond Bouwgrond Bouwgrond Bouwgrond Bouwgrond Bouwgrond
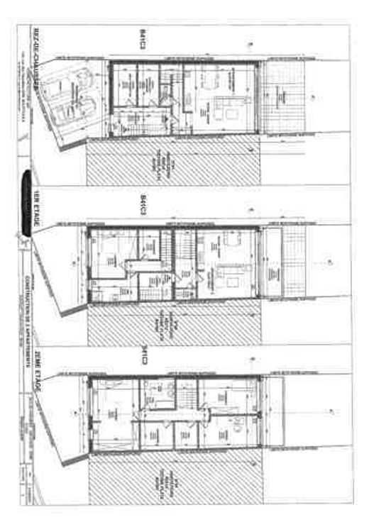
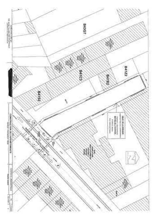
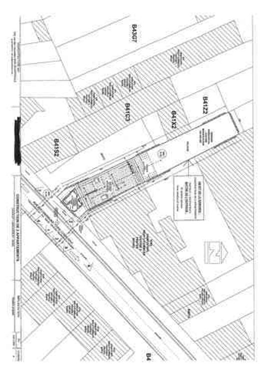
Le Deal Immobilier vous présente ce magnifique terrain à bâtir de 770m² idéalement situé sur la commune de Chatelet, Proche de tout commodité et axes routier. Le terrain fait 7.60m de Façade sur une profondeur de 31m. Les égouttages et le gaz passe dans la rue. Magnifique projet accordé de 2 appartement en duplex. INFOS ET VISITES AU 071/34.11.32
Type vastgoed Grond
Prijs 73.000