Te koop Handelszaak

Beschrijving van   

Vergelijk realty's

Te koop Handelszaak

Handelszaak Handelszaak Handelszaak Handelszaak Handelszaak Handelszaak Handelszaak Handelszaak Handelszaak Handelszaak Handelszaak Handelszaak Handelszaak Handelszaak Handelszaak Handelszaak Handelszaak Handelszaak Handelszaak Handelszaak Handelszaak Handelszaak Handelszaak
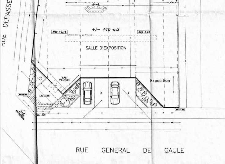
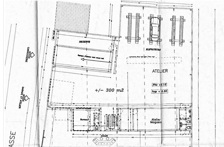
Garage/ Atelier de carrosserie avec show-room , bureaux et locaux sociaux A VENDRE ou A LOUER Superficie utile +/- 1360 m² bruts Parking voitures de +/- 1.200 m² Permis d'environnement fraichement renouvelé Bâtiment dans un état impeccable Installation PV en toiture En, cas de location, loyer attendu de 8.500 eur/mois Activité toujours présente sur site Tous contacts et visites via ImmoPME uniquement : info@immopme.be +32 (0)478 468 458 La vente de l'activité (société) constitue une option.
Type vastgoed Commercieel
Prijs 1.200.000
Bewoonbare opp. 1360