Te koop Rustig gelegen halfopen woning

Beschrijving van   

Vergelijk realty's

Te koop Rustig gelegen halfopen woning

Rustig gelegen halfopen woning Rustig gelegen halfopen woning Rustig gelegen halfopen woning
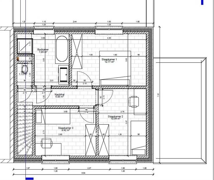
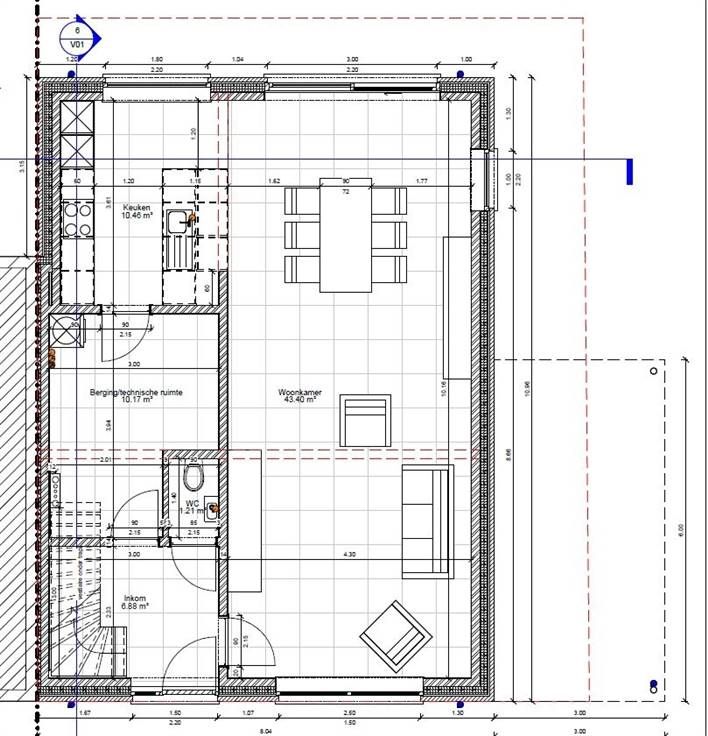
Op een perfect geörienteerd en ruim perceel mogen we weldra deze halfopen woning verwelkomen. De woning is ingedeeld met een inkom met apart toilet, ruime woonkamer met open keuken en fijn tuincontact, en een grote was/provisieberging (10m²). Op de eerste verdieping zijn drie ruime slaapkamers, praktische badkamer met wastafel, bad én douch, en een apart toilet op de nachthal. Voor de wagen is een handige carport voorzien. De woning wordt gebouw volgens E-peil 30 en is voorzien van verwarming via warmtepomp / vloerverwarming, zonnepanelen en regenwater 10.000l. De ruwbouw is inmiddels aangevat, de koper heeft evenwel nog vrije keuze in het kiezen van de afwerking keuken, badkamer en de vloeren. Voor meerinfo en inzage in de plannen: www.tuinstraat21.be We ontvangen u graag op kantoor om de woning voor te stellen, het lastenboek en plannen te overlopen waarna een werfbezoek mogelijk is.
Type vastgoed Huis
Prijs 417.340
Bewoonbare opp. 150
Aantal slaapkamers 3
Aantal badkamers 1