Te koop Huis

Beschrijving van   

Vergelijk realty's

Te koop Huis

Huis Huis Huis Huis Huis Huis Huis Huis Huis Huis Huis Huis Huis Huis Huis
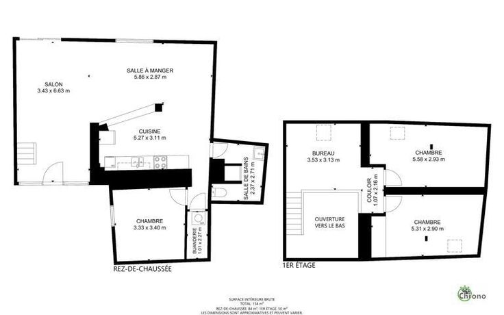
SOUS-OPTION!!!! Très belle maison semi-individuelle de plus de 130m² habitable située dans un endroit prisé et à proximité de toutes les facilités. Elle offre, au rdc: un spacieux et lumineux séjour ouvert sur la cuisine entièrement équipée, une salle de douche avec wc, un espace buanderie, une chambre de 11m². Au 1er étage: une superbe mezzanine de 11m² et deux chambres de 16m². Le bien dispose d'une belle terrasse entièrement clôturée et à l'abri des regards ainsi que de deux emplacements parking privé. Prix: faire offre à partir de 157.000€ (sous réserve d'acceptation du propriétaires vendeur). Publicité à caractère indicatif et ne constituant pas une offre.
Type vastgoed Huis
Prijs Op aanvraag
Bewoonbare opp. 134
Aantal slaapkamers 3
Aantal badkamers 1