Te huur **RECHTSTREEKS VAN EIGENAAR** - 170 €/m²/jaar

Beschrijving van   

Vergelijk realty's

Te huur **RECHTSTREEKS VAN EIGENAAR** - 170 €/m²/jaar

**RECHTSTREEKS VAN EIGENAAR** - 170 €/m²/jaar **RECHTSTREEKS VAN EIGENAAR** - 170 €/m²/jaar **RECHTSTREEKS VAN EIGENAAR** - 170 €/m²/jaar **RECHTSTREEKS VAN EIGENAAR** - 170 €/m²/jaar **RECHTSTREEKS VAN EIGENAAR** - 170 €/m²/jaar **RECHTSTREEKS VAN EIGENAAR** - 170 €/m²/jaar **RECHTSTREEKS VAN EIGENAAR** - 170 €/m²/jaar **RECHTSTREEKS VAN EIGENAAR** - 170 €/m²/jaar **RECHTSTREEKS VAN EIGENAAR** - 170 €/m²/jaar **RECHTSTREEKS VAN EIGENAAR** - 170 €/m²/jaar **RECHTSTREEKS VAN EIGENAAR** - 170 €/m²/jaar
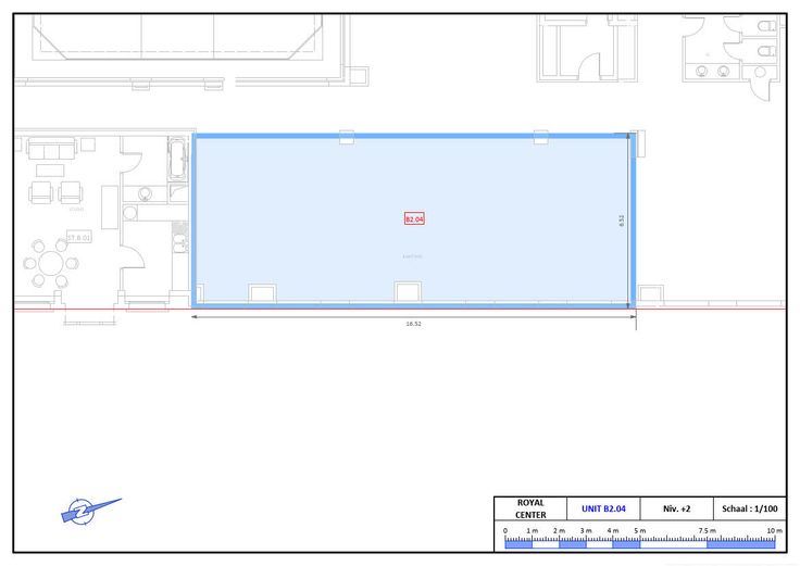
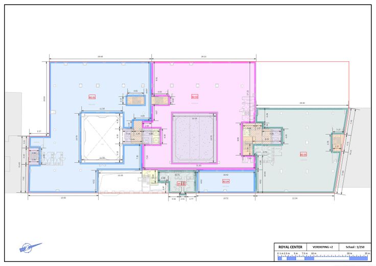
**RECHTSTREEKS VAN EIGENAAR** - 883 m² goed uitgeruste kantoren (airco, verhoogde vloer, verlaagd plafond…) gelegen in een gebouw voor gemengd gebruik, dat zich in de Koningsstraat bevindt, één van de meest prestigieuze locaties in het hart van Brussel. Deze lichtrijke kantoren met ramen voor-én achteraan bevinden zich in het midden van de tweede verdieping en hebben privatief sanitair en er is een lift. Het “Royale 180”, prestigieus gebouw voor gemengd gebruik omvat kantoor- winkel- én archiefruimte, appartementen en parkeerplaatsen. De toegangen naar kantoor- winkelruimten én appartementen zijn gesplitst. Gebouwd in 1995 met goed onderhouden kantoren en een actieplan om aan de huidige en toekomstige energienormen te voldoen. Ook is de installatie van glasvezel in het gebouw gepland. Het Royale 180 wordt uitstekend bediend door het openbaar vervoer: Treinstations “Brussel-Centraal” én “Congres” op wandelafstand. Kruidtuin metro, tram (92 én 93) en bus (65 en 66) op 100 meter. Villopunt voor de deur. Ook andere oppervlakten beschikbaar gaande van 422 m² tot 4.147 m². Mogelijkheid tot ondergrondse parkeerplaatsen. EPC = B-. We hebben deze technische- en energetische verbeteringswerken gepland om de drempel van 100 kWh/m²/jaar te bereiken (EPC B of hoger). Voor meer informatie kunt u contact opnemen met Steven Sagman op 0470/10.48.41 of per mail (ss@growners.be). (Ref : ROYALE 180 - rent - B2.02 + B2.04)
Type vastgoed Commercieel
Prijs 12.505
Bewoonbare opp. 883