Te koop Magazijn

Beschrijving van   

Vergelijk realty's

Te koop Magazijn

Magazijn Magazijn Magazijn Magazijn Magazijn Magazijn
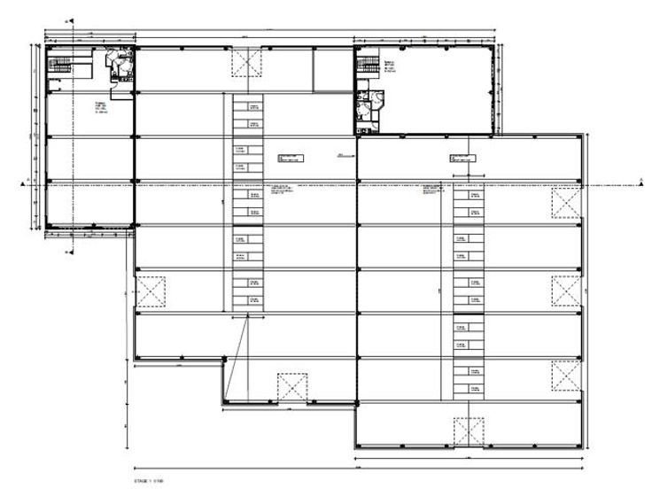
A l'angle de la Route de la Basse Sambre (N90) et de la Rue Bonne Espérance, proche du futur site de Google, IACI vous propose un hall PME neuf de 3.354 m² avec hauteur sous poutre de 6 mètres. Le hall est prévu pour être utilisé d'un seul tenant ou divisé en 2 parties, chacune avec un bureau en mezzanine, une entrée séparée et 3 portes sectionnelles. Le hall 1 comprend un entrepôt de 1.341 m², un espace accueil au RDC de 145 m² et un bureau de 259 m². Le hall 2 aura un entrepôt de 1.293 m², un espace accueil au RDC de 77m² et un bureau de 203 m². 4 emplacements PMR couverts et 35 parkings extérieurs seront créés sur le site et une réserve foncière permettra d'en rajouter une quinzaine en cas de besoin. La vente comprend le bâtiment et les abords finis et est faite sous forme d'un share deal - vente de 100% des parts de la société. Livraison prévue fin 2025 Casco, fluides en attente (Compteurs placés et raccordés) Accessibilité idéale à front de la N90 reliant Charleroi à Namur. Pour toute information complémentaire, veuillez contacter Ludovic Coulon au 0497 07 59 29 ou sur ludovic.coulon@iaci.be
Type vastgoed Commercieel
Prijs 4.025.000
Bewoonbare opp. 3354