Te koop HOB te St Michiels met extra ruime inpandige garage
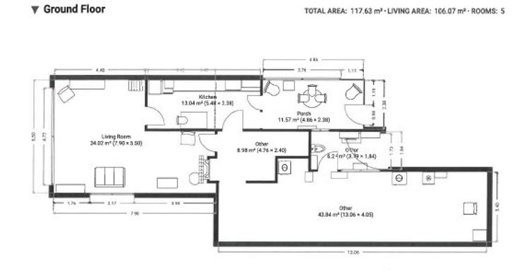
Vlakbij centrum en station ligt in de Barrierestraat deze goed onderhouden half open bebouwing op een perceel van 259 m².
Inkom met gastentoilet mogelijkheid om hier ook een 2 de badkamer van te maken.
woonplaats met veel lichtinval.
Aparte keuken met veranda.
Gezellig terras/tuin.
Garage voor 2 wagens met als extra, hoge poort waar een mobilhome/camionette in past.
De garage kan ook dienst doen als atelier/hobbyruimte en is verbonden aan de woning.
Boven 2 grote slaapkamers en een badkamer met ligbad.
Zolder waar een extra kamer kan worden gemaakt. Met een label C geldt hier geen renovatie plicht.
Bel ons gerust op voor een bezoekje op 0492/889894
Deze prijs is een startprijs, elk hoger bod wordt voorgelegd aan de eigenaar.