Te koop Duplex

Beschrijving van   

Vergelijk realty's

Te koop Duplex

Duplex Duplex Duplex Duplex Duplex Duplex Duplex Duplex Duplex Duplex Duplex Duplex
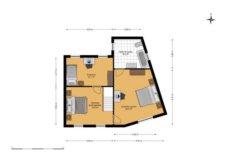
1% immo vous propose cette agréable et lumineuse maison de village en très bon état, 4 façades avec terrasse/parking à l'avant. Ce bien se compose d'un hall d'entrée, un lumineux séjour totalement ouvert sur une salle à manger avec espace bureau et une spacieuse cuisine meublée et équipée avec coin à manger et accès à la rue et une buanderie attenante. A l'étage, vous trouverez 3 chambres et une salle de bain. Ce bien dispose également d'une cave. Electricité conforme ! Faire offre àpd 185.000 euros ! Située à proximité des commerces, écoles et de la E40. A découvrir rapidement ! Plus de détails, plans et infos sur : www.unpourcentimmo.be
Type vastgoed Appartement
Prijs 185.000
Bewoonbare opp. 134
Aantal slaapkamers 3
Aantal badkamers 1