Te koop RUIM INSTAPKLAAR APPARTEMENT

Beschrijving van   

Vergelijk realty's

Te koop RUIM INSTAPKLAAR APPARTEMENT

RUIM INSTAPKLAAR APPARTEMENT RUIM INSTAPKLAAR APPARTEMENT RUIM INSTAPKLAAR APPARTEMENT RUIM INSTAPKLAAR APPARTEMENT RUIM INSTAPKLAAR APPARTEMENT RUIM INSTAPKLAAR APPARTEMENT RUIM INSTAPKLAAR APPARTEMENT RUIM INSTAPKLAAR APPARTEMENT RUIM INSTAPKLAAR APPARTEMENT RUIM INSTAPKLAAR APPARTEMENT RUIM INSTAPKLAAR APPARTEMENT
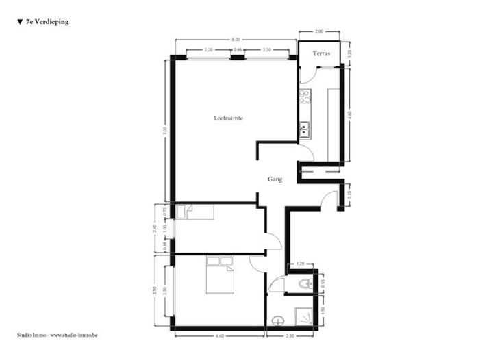
Dit appartement op de zevende verdieping van residentie Antigoon biedt een combinatie van comfort, ruimte en een toplocatie. De lichtrijke leefruimte (35m²) op blokparket sluit aan op een vernieuwde keuken (10m²) met gasfornuis, oven, dampkap en spoelbak. Via de keuken bereik je een klein balkon. De twee slaapkamers (± 16m² en 12m²) liggen aan de rustige achterzijde. De moderne badkamer heeft een inloopdouche en lavabo; daarnaast is er een apart toilet. Extra troeven: PVC schrijnwerk met dubbel glas, gemeenschappelijke kosten van € 250/maand inclusief verwarming en water, conciërgedienst en recente renovaties in het gebouw. Optionele parkeerplaats beschikbaar (€ 20.000,-). Gelegen op wandelafstand van winkels, scholen en openbaar vervoer. Interesse? Contacteer ons via 03 535 12 75! BEWOONBARE OPPERVLAKTE gebaseerd op de “bruikbare vloeroppervlakte” zoals vermeld in het EPC.
Type vastgoed Appartement
Prijs 189.000
Bewoonbare opp. 102
Aantal slaapkamers 2
Aantal badkamers 1