Te koop 2 kantoren met garage perfect gelegen

Beschrijving van   

Vergelijk realty's

Te koop 2 kantoren met garage perfect gelegen

2 kantoren met garage perfect gelegen 2 kantoren met garage perfect gelegen 2 kantoren met garage perfect gelegen 2 kantoren met garage perfect gelegen 2 kantoren met garage perfect gelegen 2 kantoren met garage perfect gelegen 2 kantoren met garage perfect gelegen 2 kantoren met garage perfect gelegen 2 kantoren met garage perfect gelegen 2 kantoren met garage perfect gelegen
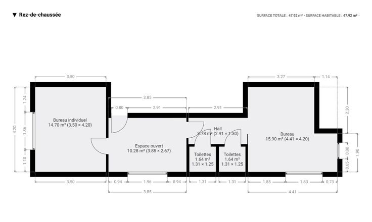
Ontdek deze echte professionele vastgoedkans in het hart van Luik! Kortbij Van der Valk Congres een Restaurant Heliport ! 2 praktijken/kantoren rond een wachtruimte/ontvangstruimte en toilet. Waan je in een kantoor dat ideaal gelegen is in het hart van de meest prestigieuze wijk van de stad ? Of je nu een visionaire freelancer bent of een snelgroeiend bedrijf, deze lokalen passen perfect bij je behoeften. Flexibiliteit is het sleutelwoord, zodat u uw ideale ruimte kunt vormgeven. Deze kans wordt gecompleteerd door een belangrijke troef: een privégarage. Geen zorgen meer over parkeren in het stadscentrum!Grijp deze unieke kans om je te vestigen in het epicentrum van de Luikse zakenwereld. Uw adres zal uw beste verkoopargument worden, waardoor uw geloofwaardigheid en zichtbaarheid onmiddellijk zullen toenemen. Wacht niet langer om uw bedrijf het kader te geven dat het verdient.  En trouwens, deze kantoren zijn altijd verhuurd geweest, voor het laatst aan €2000/maand. Aan €1650 bruto, of €1155 netto, is je rendement bijna 7% netto! Neem nu contact met ons op voor een bezoek op 04/232.21.21.
Type vastgoed Commercieel
Prijs 229.000
Bewoonbare opp. 55