Te koop 7 nieuwbouwwoningen

Beschrijving van   

Vergelijk realty's

Te koop 7 nieuwbouwwoningen

7 nieuwbouwwoningen 7 nieuwbouwwoningen 7 nieuwbouwwoningen 7 nieuwbouwwoningen 7 nieuwbouwwoningen 7 nieuwbouwwoningen 7 nieuwbouwwoningen 7 nieuwbouwwoningen 7 nieuwbouwwoningen 7 nieuwbouwwoningen 7 nieuwbouwwoningen 7 nieuwbouwwoningen 7 nieuwbouwwoningen 7 nieuwbouwwoningen
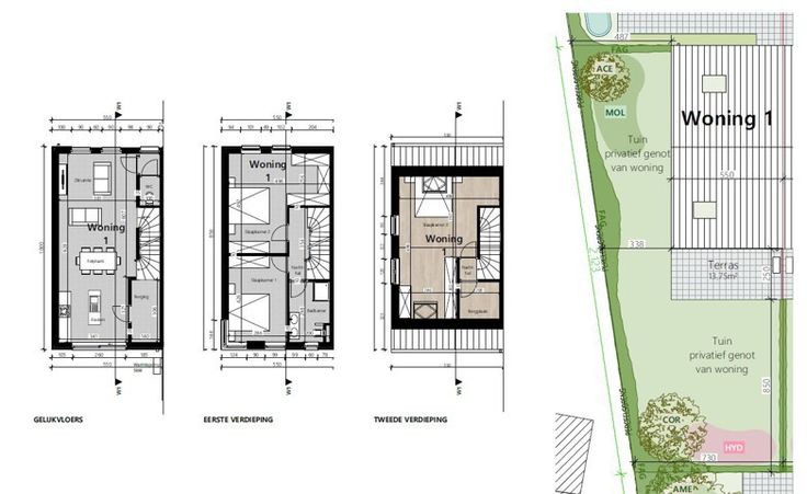
Project "Carbo" is een nieuwbouwproject te Kessel bestaande uit 7 woningen, namelijk 5 gesloten en 2 half open bebouwingen. De woningen zullen afgewerkt worden met hoogstaande en kwalitatieve materialen. De materiaalkeuzes voor de gevels zijn bepaald om tot een harmonieus geheel te komen over de totaliteit van het project. De woningen beschikken allen over een inkomhal, volledig ingerichte keuken en badkamer, 3 slaapkamers, woonkamer, berging, 2 toiletten, zolder en een tuin. Alle woning krijgen tevens een fotovoltaïsch zonnen systeem.  In de voortuin zal een fietsenberging voorzien worden. Meer info omtrent Plannen, prijzen en lastenboek kan u bekomen op ons kantoor. Maak alvast uw afspraak op 03 284 30 13 of spring gerust binnen. Verkoop onder BTW-stelsel.
Type vastgoed Huis
Prijs 425.166
Bewoonbare opp. 154
Aantal slaapkamers 3
Aantal badkamers 1