Te koop Huis

Beschrijving van   

Vergelijk realty's

Te koop Huis

Huis Huis Huis Huis Huis Huis Huis Huis Huis Huis Huis Huis Huis Huis Huis Huis Huis Huis Huis Huis Huis
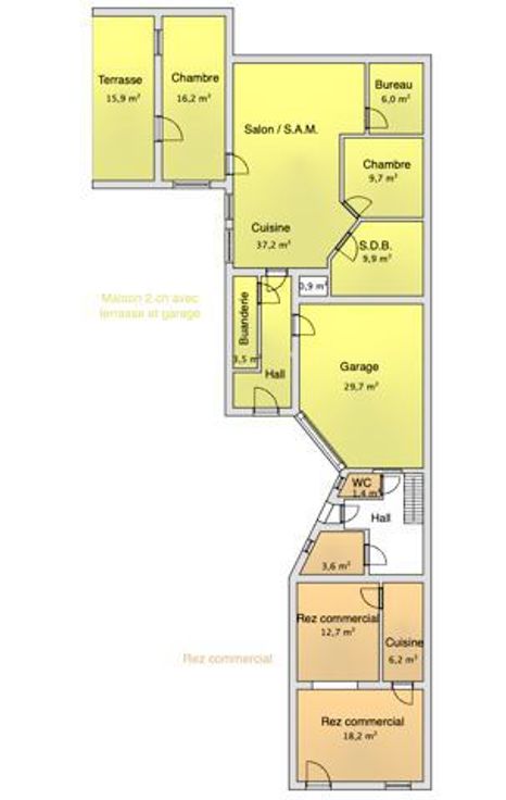
Immo-W vous propose à la vente cet immeuble de rapport entretenu avec soin par le propriétaire. Idéalement situé à Jambes, à 500 m de l'Avenue Jean Materne et à 800 m du Pont de Jambes, il se compose de 5 unités dont une à régulariser : maison 2 ch. avec terrasse et garage (env. 108 m2) au rez / appart. 1 ch a(env. 40 m2) au 1er / studio avec terrasse (env. 34m2) au 1er /studio avec chambre en mezzanine (env. 39 m2) au 2ème / rez-de-chaussée commercial env. 34 m2. L'installation électrique est CONFORME dans les 5 unités. Compteurs électriques individuels, chauffage individuel au gaz. Visites virtuelles de l'ensemble disponibles via les liens suivants : Maison : https://view.ricoh360.com/8d6348ec-469e-477a-8af8-1331b21e153d Appartement : https://view.ricoh360.com/3f0ad340-fcba-4bcf-9d2a-00fd20dda636 Studio avec terrasse : https://view.ricoh360.com/2c459963-b55a-4446-af9e-c94db87597da Studio mezzanine : https://view.ricoh360.com/0ff162e6-b7e0-4cd8-abc3-24499226a6ff Séduit par le bien ? N'hésitez pas à prendre rdv avec notre bureau au 0488 00 47 37 pour une visite sur place.
Type vastgoed Huis
Prijs 500.000
Aantal slaapkamers 5