Te koop Licht appartement met 2 slaapkamers

Beschrijving van   

Vergelijk realty's

Te koop Licht appartement met 2 slaapkamers

Licht appartement met 2 slaapkamers Licht appartement met 2 slaapkamers Licht appartement met 2 slaapkamers Licht appartement met 2 slaapkamers Licht appartement met 2 slaapkamers Licht appartement met 2 slaapkamers Licht appartement met 2 slaapkamers Licht appartement met 2 slaapkamers Licht appartement met 2 slaapkamers Licht appartement met 2 slaapkamers Licht appartement met 2 slaapkamers Licht appartement met 2 slaapkamers Licht appartement met 2 slaapkamers Licht appartement met 2 slaapkamers Licht appartement met 2 slaapkamers
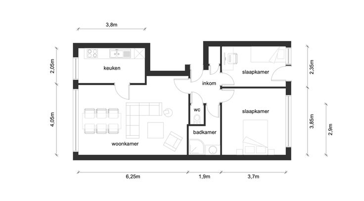
Dit instapklaar gerenoveerd appartement gelegen op de 5de verdieping heeft een mooi ruim zicht. Het appartement met veiligheidsdeur heeft een inkomhal met berging en een apart toilet, een ruime leefruimte met open zicht en een gedeeltelijk geïnstalleerde keuken. De badkamer met douche en wastafel heeft ruimte voor wasmachine en droogkast. Verder hebben we 2 ruime slaapkamers met rolluiken achteraan en een gezellig terrasje. Bijhorend is er op het gelijkvloers nog een ruime private berging. Water en verwarming zijn gemeenschappelijk met aparte tellers. Het appartement wordt momenteel verhuurd aan €785,- + €145,- voor de onkosten gemene delen en een provisie voor de verwarming.
Type vastgoed Appartement
Prijs 185.000
Bewoonbare opp. 87
Aantal slaapkamers 2
Aantal badkamers 1