Te koop Praktisch en energiezuinig handelsgelijkvloers met terras!
Dit veelzijdige handelsgelijkvloers met een totale oppervlakte van 123m² biedt tal van mogelijkheden voor winkel, kantoor, opslag of zelfs een opnamestudio. Dankzij de gunstige ligging nabij het centrum van Aalst en op een belangrijke invalsweg met veel passage, geniet dit pand van maximale visibiliteit.
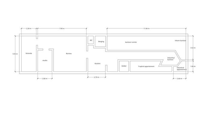
Indeling: kantoorruimte, ruime ingerichte keuken, afzonderlijk bureau, toilet, twee bergruimtes, een vernieuwde veranda en een deels overdekt terras.
Troeven: verwarming (warmtepomp), dubbele beglazing & elektriciteit vernieuwd in 2017, goede bereikbaarheid en veelzijdige gebruiksmogelijkheden.
Benieuwd naar dit handelsgelijkvloers? Dan kan u meteen binnenkijken aan de hand van het virtuele bezoek op onze website.
Voor meer info en/of een bezoek, contacteer ons via aalst@immotijl.be of 053 42 46 99.