Te koop Huis

Beschrijving van   

Vergelijk realty's

Te koop Huis

Huis Huis Huis Huis Huis
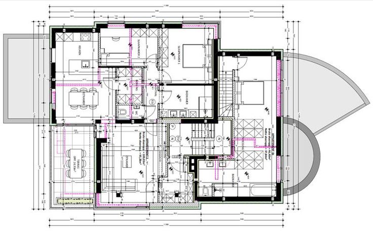
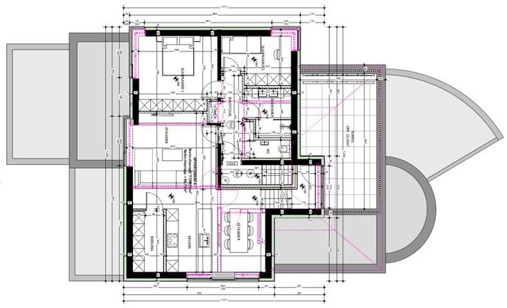
Op zoek naar een interessante investeringskans? Dan is deze ruime woning, gelegen nabij het centrum van Hechtel, de juiste keuze! Dit te renoveren pand ligt op een perceel van 12 are 45 ca en beschikt over een goedgekeurde vergunning voor de omvorming naar 4 appartementen. Voor deze omvorming dienen er weinig structurele werken gedaan te worden. Het perceel heeft een straatbreedte van 19 meter en een diepte van 65,5 meter. Dankzij de centrale ligging in Hechtel zijn alle nodige voorzieningen binnen handbereik (openbaar vervoer, supermarkt,...). Bovendien bevindt het zich aan een belangrijke verbindingsweg richting Hasselt en andere omliggende gemeenten, wat zorgt voor een vlotte bereikbaarheid. Interesse? Contacteer ons en wij helpen je dichtblij verder!
Type vastgoed Huis
Prijs 575.000
Bewoonbare opp. 390
Aantal slaapkamers 8