Te koop Appartement

Beschrijving van   

Vergelijk realty's

Te koop Appartement

Appartement Appartement Appartement Appartement Appartement Appartement Appartement Appartement Appartement Appartement Appartement Appartement Appartement Appartement
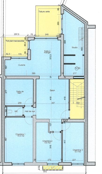
L'Immobilière Georges, votre agence référence à Forest, vous propose cet appartement 3 chambres de +/- 92m² proche du parc de Forest et du parc Duden - Dans une petite copropriété en cours de création, au 1er étage, il se compose d'un living, salle à manger, cuisine équipée, terrasse (5m²) orienté Sud-Est, salle de bain avec WC - 3 chambres (14m², 10m², 10m²) - WC invité - Chaudière individuelle au gaz - PEB E + - Actuellement loué 1.100€ - Rénovation à prévoir : mise en conformité de l'électricité, cuisine et rafraichissement global - VISITE VIRTUELLE : https://my.matterport.com/show/?m=FnGdJYrshiW - Pour plus d'informations et visites, contactez nous au 02/343.46.95 ou info@immobilieregeorges.be
Type vastgoed Appartement
Prijs 275.000
Bewoonbare opp. 92
Aantal slaapkamers 3
Aantal badkamers 1