Te koop Licht appartement met zicht op groen

Beschrijving van   

Vergelijk realty's

Te koop Licht appartement met zicht op groen

Licht appartement met zicht op groen Licht appartement met zicht op groen Licht appartement met zicht op groen Licht appartement met zicht op groen Licht appartement met zicht op groen Licht appartement met zicht op groen Licht appartement met zicht op groen Licht appartement met zicht op groen Licht appartement met zicht op groen Licht appartement met zicht op groen
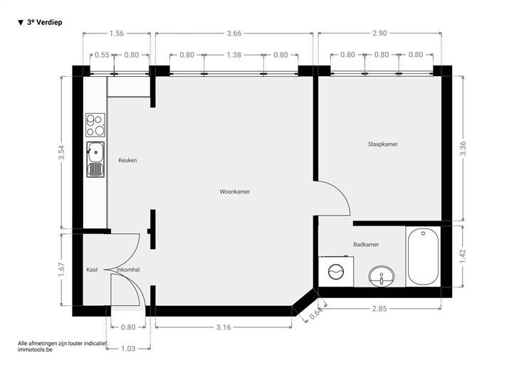
In een verzorgd gebouw vind je op de derde verdieping dit appartement, waar je binnenkomt in de inkomhal op een doorlopende laminaatvloer, met z’n handige vestiairekast. Verderop stap je de leefruimte in, een lichte, open plek met een kamerbreed raam dat uitkijkt op groen, met plaats voor een zetel en een eethoek. De open keuken in L-vorm heeft een praktische tegelvloer en is volledig geïnstalleerd. Je vindt hier een elektrisch vuur, dampkap, dubbele spoelbak, koelkast, een betegelde spatwand en heel wat kastruimte. Het halfhoge muurtje zorgt voor een subtiele afscheiding, en biedt plaats om enkele verse kruiden op te zetten, bijvoorbeeld. Aan de andere kant van de leefruimte neem je de deur naar de aparte slaapkamer, met z’n aanpalendebadkamer. Ook die slaapkamer is enorm licht, dankzij het grote raam dat uitgeeft op groen, en met plaats voor een dubbel bed en een kleerkast. De betegelde badkamer heeft een ligbad met een douchewand, een lavabo met spiegel, verlichting en onderkast, een wc en een automatisch afzuigsysteem. Je woont hier in hartje Linkeroever, op wandelafstand van de St. Annatunnel, die je zo de stad in brengt. Met een velo-station vlak voor het appartement en een metrostation in de buurt, ben je hier heel mobiel en de stad zo in en weer uit. Op Sint Anneke plage, met z’n wandelboulevard en heel wat horeca, ben je zo en ook in het St. Annabos. Meer info: https://www.immovasta.be/panden/gegevens/13933/
Type vastgoed Appartement
Prijs 144.000
Bewoonbare opp. 47
Aantal slaapkamers 1
Aantal badkamers 1