Te koop Zuidelijke georiënteerde bouwgrond voor op...

Beschrijving van   

Vergelijk realty's

Te koop Zuidelijke georiënteerde bouwgrond voor open bebouwing

Zuidelijke georiënteerde bouwgrond voor open bebouwing Zuidelijke georiënteerde bouwgrond voor open bebouwing Zuidelijke georiënteerde bouwgrond voor open bebouwing
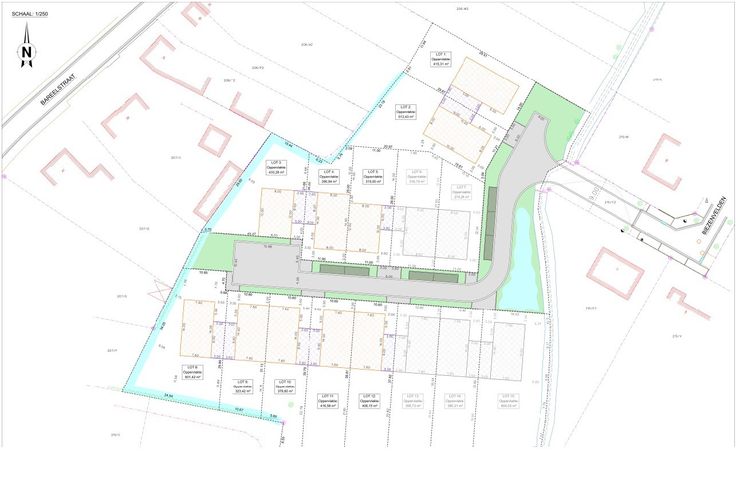
Te koop: mooi perceel bouwgrond voor open bebouwing op een rustige maar centrale ligging, op het einde van een doodlopende straat. Zuidelijke oriëntatie, 601m2. Geen bouwverplichting. Voor meer info bel naar Sara Pollet 0473 93 25 74 of mail naar sara.pollet@durabrik.be Renovatieplicht: nee
Type vastgoed Grond
Prijs 182.000