Te huur Gelijkvloers appartement met ruim terras i...

Beschrijving van   

Vergelijk realty's

Te huur Gelijkvloers appartement met ruim terras in centrum Ninove

Gelijkvloers appartement met ruim terras in centrum Ninove Gelijkvloers appartement met ruim terras in centrum Ninove Gelijkvloers appartement met ruim terras in centrum Ninove Gelijkvloers appartement met ruim terras in centrum Ninove Gelijkvloers appartement met ruim terras in centrum Ninove Gelijkvloers appartement met ruim terras in centrum Ninove Gelijkvloers appartement met ruim terras in centrum Ninove Gelijkvloers appartement met ruim terras in centrum Ninove Gelijkvloers appartement met ruim terras in centrum Ninove Gelijkvloers appartement met ruim terras in centrum Ninove Gelijkvloers appartement met ruim terras in centrum Ninove Gelijkvloers appartement met ruim terras in centrum Ninove Gelijkvloers appartement met ruim terras in centrum Ninove
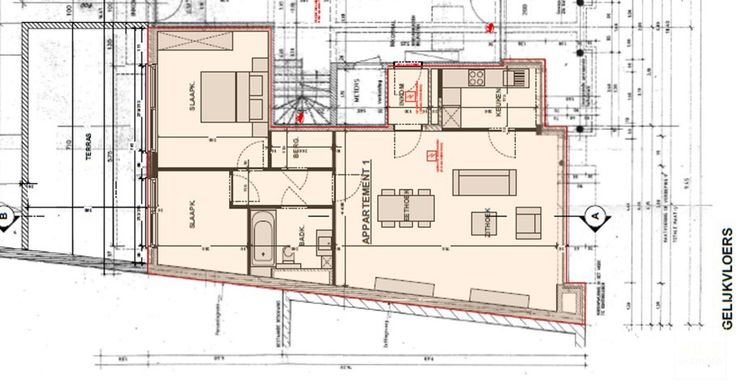
Dit gelijkvloers appartement is ideaal gelegen in het centrum van Ninove, in een goed onderhouden en rustig gebouw. Indeling: inkomhal, lichtrijke woonkamer, recente keuken, nachthal, moderne badkamer, berging, twee slaapkamers en een ruim terras van 27 m² met tuinhuisje voor extra opslag (vuilniszakken en kuismateriaal). Inclusief raamdecoratie. Gemeenschappelijke lasten: € 40 (forfait). Beschikbaar vanaf 01/03, 15/03 of 01/04.
Type vastgoed Appartement
Prijs 875
Bewoonbare opp. 91
Aantal slaapkamers 2
Aantal badkamers 1