Te huur Handelspand op uitstekende locatie

Beschrijving van   

Vergelijk realty's

Te huur Handelspand op uitstekende locatie

Handelspand op uitstekende locatie Handelspand op uitstekende locatie Handelspand op uitstekende locatie Handelspand op uitstekende locatie
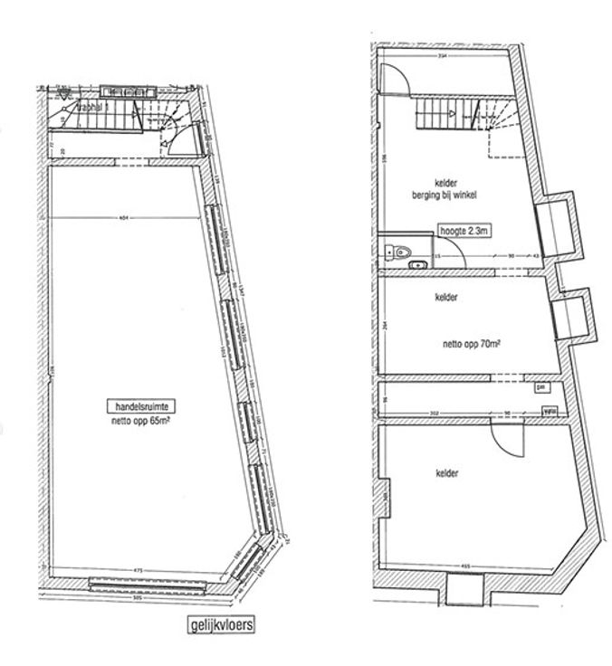
Dit handelspand heeft een uitstekende locatie in het centrum van Gent, vlakbij de Korenmarkt en in een zijstraat van de winkelstraat. Het pand bevindt zich op het gelijkvloers en heeft een oppervlakte van 65m², daarbovenop is er een kelder van 70m² aanwezig. De ruimte beschikt niet over een inboedel en is dus volledig vrij in te richten. De bestemming (horeca, winkelruimte, kantoor...) is vrij te bepalen. Ingang van het contract is te bespreken.
Type vastgoed Commercieel
Prijs 2.750
Bewoonbare opp. 65