Te koop Prijsgunstige energiezuinige nieuwbouw met...

Beschrijving van   

Vergelijk realty's

Te koop Prijsgunstige energiezuinige nieuwbouw met 3 slaapkamers

Prijsgunstige energiezuinige nieuwbouw met 3 slaapkamers Prijsgunstige energiezuinige nieuwbouw met 3 slaapkamers Prijsgunstige energiezuinige nieuwbouw met 3 slaapkamers Prijsgunstige energiezuinige nieuwbouw met 3 slaapkamers Prijsgunstige energiezuinige nieuwbouw met 3 slaapkamers
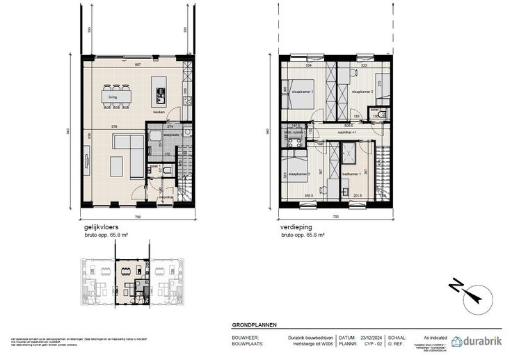
In het rustige en landelijke Hertsberge realiseert Durabrik een nieuwe kleinschalige verkaveling in het verlengde van de Muntestraat. In een eerste fase komen er nu 10 woningen in verkoop.  Lot 6 is een gesloten bebouwing in de moderne bouwstijl : 2 bouwlagen en een plat dak.  GELIJKVLOERS : inkom, wc, ruime living, open keuken met eiland, ruime berging/wasplaats. EERSTE VERDIEPING : 3 ruime slaapkamers, ingerichte badkamer met inloopdouche, badkamermeubel met dubbele lavabo, aparte wc, technische ruimte. Eigen private parkeerplaats. Gezellige tuin, toegankelijk achteraan via een padje, ideaal voor fietsers ! Doodlopend straatje zonder doorgaand verkeer. Vlakbij nieuwe groenzone.  Goeie verbinding met de E40. Deze woning wordt volledig afgewerkt aangeboden met ingerichte keuken en badkamer, bevloering en vloerverwarming. Superenergiezuinige woning (E -25 !) door warmtepomp, doorgedreven isolatiepakket, ventilatiesysteem D en pakket zonnepanelen. Download de brochure op https://durabrik.immo/hertsberge Bij Durabrik ben je zeker van een vaste prijs. Geen budgettaire verrassingen dus tijdens je bouwtraject. Heb je vragen? Contacteer dan je bouwadviseur via 09/280.60.60. of mail naar info@durabrik.be. Inspiratie opdoen? Bezoek onze kijkwoning in Roeselare of Aalter op afspraak. Prijs excl. btw en kosten. * Beelden en oppervlaktes zijn indicatief Renovatieplicht: nee
Type vastgoed Huis
Prijs 358.500
Bewoonbare opp. 131
Aantal slaapkamers 3
Aantal badkamers 1