Te koop Appartement

Beschrijving van   

Vergelijk realty's

Te koop Appartement

Appartement Appartement Appartement Appartement Appartement Appartement
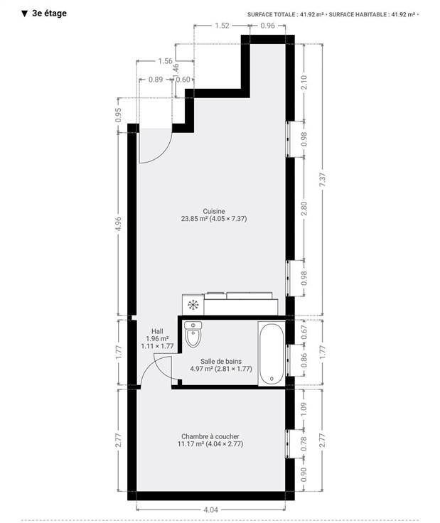
Ontdek dit charmante appartement in het hart van Ciney, ideaal voor stadsbewoners die op zoek zijn naar comfort en gemak. Met 45 m² woonoppervlak biedt dit appartement een warme en gezellige sfeer, perfect voor een stel of een alleenstaande. **Belangrijkste kenmerken:** - **Comfortabele slaapkamer**: Een ruime en lichte slaapkamer, die optimale slaapruimte biedt met grote ramen die natuurlijk licht binnenlaten. - **Gezellige lounge**: Een leefruimte met een geïntegreerde lounge en eethoek, ideaal om vrienden en familie te ontvangen of om te ontspannen na een lange dag. - **Uitgeruste keuken**: Een moderne, functionele keuken, uitgerust met alle apparatuur die je nodig hebt om je favoriete gerechten te bereiden. - **Moderne badkamer**: Uitgerust met een bad en alle essentiële voorzieningen voor dagelijks comfort. Deze flat ligt in een dynamische wijk van Ciney, dicht bij alle voorzieningen: plaatselijke winkels, openbaar vervoer, scholen en parken. Met goede vervoersverbindingen, biedt het gemakkelijke toegang tot de belangrijkste verkeersaders van de stad voor uw dagelijkse woon-werkverkeer. Een niet te missen kans voor wie in een stedelijke omgeving wil wonen en wil genieten van een warm, goed ingericht interieur. Huren volgens schriftelijke huurovereenkomst! BEZOEK vandaag nog en maak van deze flat je volgende thuis!
Type vastgoed Appartement
Prijs 145.000
Bewoonbare opp. 51
Aantal slaapkamers 1
Aantal badkamers 1