Te koop Huis

Beschrijving van   

Vergelijk realty's

Te koop Huis

Huis Huis Huis
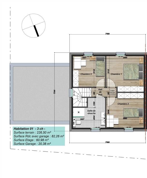
Julietimmo presenteert dit toekomstige moderne huis, waarvan de bouw start in september 2024. Gelegen in het dorp Châtillon, een dynamische gemeente van Saint-Léger. Het ligt op slechts 10 minuten van Aarlen en is ideaal gelegen vlakbij de snelweg naar Luxemburg. Dit huis met 3 slaapkamers is uitgerust met een dual-flow ventilatiesysteem en profiteert van alle nieuwste technologieën, waaronder vloerverwarming, een lucht/water-warmtepomp, ramen met driedubbele beglazing en voorbedrading voor de toekomstige installatie van fotovoltaïsche panelen. Het zal je bekoren met zijn kwaliteitsmaterialen, ruime leefruimtes, helderheid en afwerkingen. Voor extra gemak is er ook een garage en een parkeerplaats. Het is nog steeds mogelijk om te personaliseren! Dus aarzel niet, bel ons nu op 0494 84 42 04 of stuur een e-mail naar info@julietimmo.com. Alle informatie die door het agentschap wordt verstrekt, is louter informatief en niet contractueel bindend. Het agentschap kan er niet verantwoordelijk voor worden gehouden en het ontslaat geïnteresseerden niet van eigen onderzoek.
Type vastgoed Huis
Prijs 419.900
Bewoonbare opp. 123
Aantal slaapkamers 3