Te koop Huis

Beschrijving van   

Vergelijk realty's

Te koop Huis

Huis Huis Huis Huis Huis Huis Huis Huis Huis Huis Huis Huis Huis Huis Huis Huis Huis Huis Huis
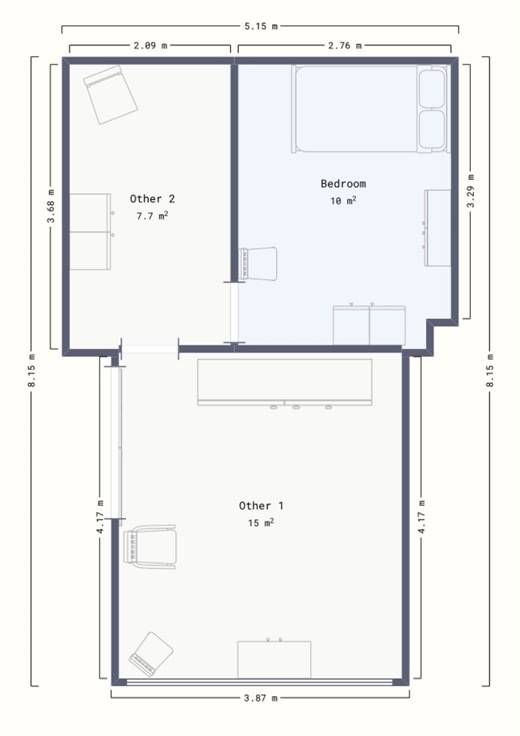
Verzorgde gezinswoning met 2 slaapkamers, inpandige garage en tuin van 110 m². Deze woning is gelegen in het centrum van Hoevenen, nabij winkels, scholen en openbaar vervoer. Vlotte verbinding naar de A12 en de haven van Antwerpen. INDELING: kelderverdieping: droge kelder met aansluiting voor wasmachine. Gelijkvloers:  inkomhal, garage met automatische poort, keuken, ruime living met haardcassette, veranda en tuin. Tussenverdieping: badkamer met inloopdouche en apart toilet. Verdieping1:  2 slaapkamers met airco. Verdieping 2:  bergzolder. BIJZONDERHEDEN: elektrische accumulatie verwarming Ramen in hout met dubbele beglazing .
Type vastgoed Huis
Prijs 255.000
Bewoonbare opp. 122
Aantal slaapkamers 2
Aantal badkamers 1