Te huur Huis

Beschrijving van   

Vergelijk realty's

Te huur Huis

Huis Huis Huis Huis Huis Huis Huis Huis Huis Huis Huis Huis Huis Huis Huis Huis Huis Huis
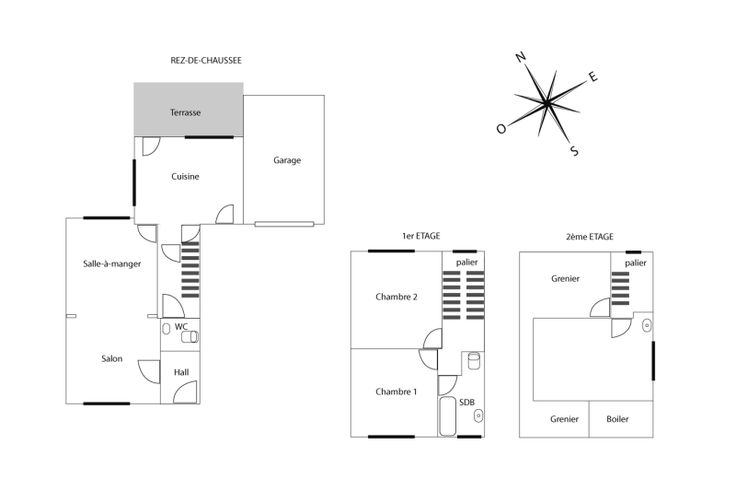
Jolie maison 4 façades, rénovée, avec jardin sur un terrain de 5 ares. Dans une rue calme à sens unique (zone 30) Loyer : 1400€/mois Libre le 01/04/2025 Surface habitable: 120 m2 Pour la visiter: 0496 93 92 60 • CAVES: 40m2 • REZ: hall d’entrée, living-salle-à-manger, cuisine équipée, hall avec accès à l’étage, WC Garage 1 voiture, emplacement privé parking extérieur Terrasse - grande remise (25m2) • 1er ETAGE: 2 chambres lumineuses (2x 12m2), salle-de-bain avec baignoire-douche et WC. • 2ème ETAGE: 1 grande chambre (16m2) avec point d’eau - grenier Chauffage central au mazout - Double vitrage - Plancher aux étages. Proximité écoles maternelles et primaires. Arrêt de bus à 200m. Commerces à 2 km (Court-St-Etienne - Ottignies) Disponible à partir du 01/04/2025 (agences s’abstenir)
Type vastgoed Huis
Prijs 1.400
Bewoonbare opp. 120
Aantal slaapkamers 3
Aantal badkamers 1