Te koop Denderleeuw, Anjelierenlaan - Steenweg - Fase 2 (Anjelier...
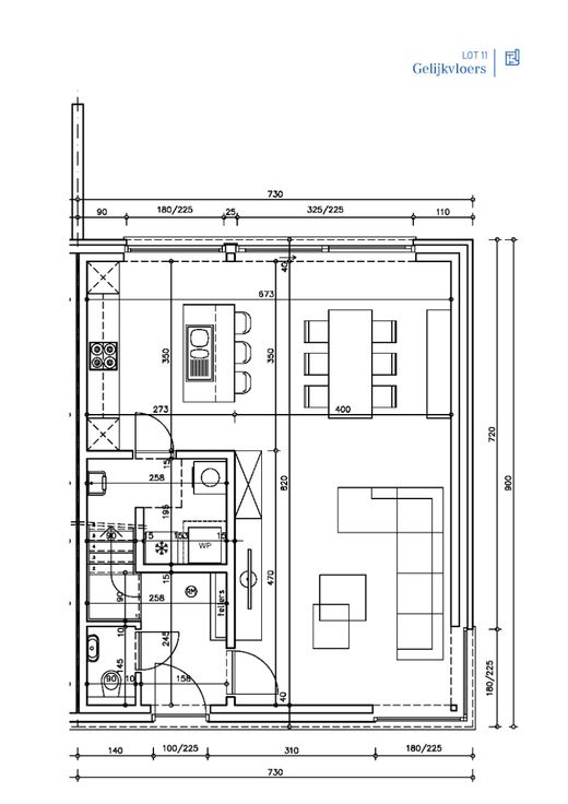
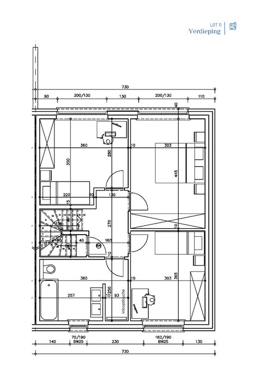
Ruime en energiezuinige nieuwbouwwoning op een zuidelijk georiënteerd perceel van 259m2. Op het gelijkvloers is een inkom met gastentoilet, een wasplaats/berging, en een open leefruimte. Op de eerste verdieping bevinden zich 3 slaapkamers en een badkamer met bad + inloopdouche + toilet. De zolder is toegankelijk met een vaste trap waardoor hier ook nog een vierde slaapkamer kan gemaakt worden. De vermelde prijs is inclusief ALL-IN afwerking. De interieurafwerking is 100% op maat! De keuken, vloeren, badkamer,.... het kan allemaal vrij gekozen worden. Standaard is de woning sowieso voorzien van alle moderne technieken zoals een warmtepomp en vloerverwarming op het gelijkvloers +1e verdieping. De woning wordt gebouwd in een nieuwe residentiële verkaveling met 11 woningen en 2 meergezinswoningen. Het residentiële project vormt een architecturaal geheel met optimaal ingedeelde wooneenheden en verschillende groen- en speelzones. Kom jij hier binnenkort thuis? Contacteer onze bouwadviseur Ewout voor meer informatie: 0497 588 888 - contact@huysmanbouw.be
Renovatieplicht: onbekend