Te koop Uitstekend gelegen lichtrijk 1-slaapkamera...

Beschrijving van   

Vergelijk realty's

Te koop Uitstekend gelegen lichtrijk 1-slaapkamerappartement met ...

Uitstekend gelegen lichtrijk 1-slaapkamerappartement met ... Uitstekend gelegen lichtrijk 1-slaapkamerappartement met ... Uitstekend gelegen lichtrijk 1-slaapkamerappartement met ...
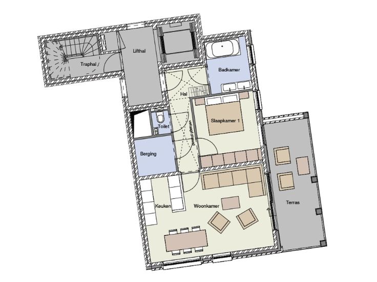
Dit gezellig en lichtrijk appartement is uitstekend gelegen langs de Leie, op een bijzonder rustige en unieke locatie Molenkant! Het appartement is gelegen binnen de kleinschalige residentie Volmolen. Het appartement beschikt over een bewoonbare oppervlakte van 71m² en is ingedeeld in: een inkomhal met vestiaireruimte en toilet, een living met zit- en eetruimte, een ingerichte keuken (met vaatwas, micro-combi, koelkast), een zeer ruime berging, 1 slaapkamer die toegang heeft naar het terras, een badkamer met inloopdouche en lavabo en een exclusief en ruim terras van 16m²! Tevens is er de mogelijkheid tot het huren van een ondergrondse of bovengrondse autostaanplaats indien gewenst. Vanuit de leefruimte en van op het terras geniet men een uitzonderlijk zicht op de Leie! U kan er ten volle genieten van de overheersende rust die er heerst op Molenkant! Bovendien is het appartement zeer energiezuinig!! Het appartement is bijna energieneutraal en beschikt over een E-peil 31! Het appartement is ook ideaal als investering! Verkoop onder registratie! Voor meer informatie of een bezoek ter plaatse; bel gerust! 0495/108 108  Renovatieplicht: onbekend
Type vastgoed Appartement
Prijs 229.000
Bewoonbare opp. 71
Aantal slaapkamers 1
Aantal badkamers 1