Te koop Huis

Beschrijving van   

Vergelijk realty's

Te koop Huis

Huis Huis Huis Huis Huis Huis Huis Huis Huis Huis Huis
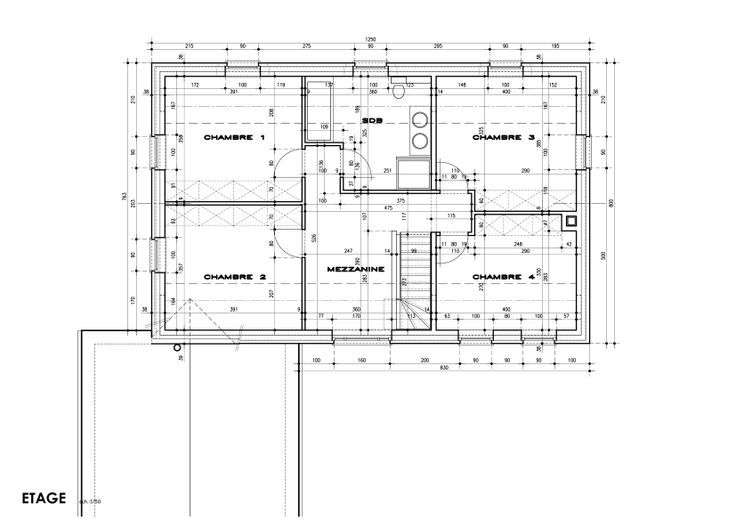
Nouvelle construction 4F modulable sur terrain à bâtir Maison Compère vous propose un superbe terrain à bâtir de ± 30 ares, situé à Dour, dans le Borinage, offrant une vue dégagée à l’arrière sur les champs. Avec une façade de 20 m et une profondeur de 150 m, ce terrain se trouve dans un environnement rural à moins de 10 minutes de l'autoroute E42 et à proximité des commerces locaux (Dour centre à 2 km). La frontière française se situe également à moins de 4 km. Nous avons le plaisir de vous proposer cette superbe villa 4 façades* se composant au rez-de-chaussée d’un hall d’entrée, un bureau, une buanderie, une cuisine ouverte sur le séjour d’une superficie de 60 m² entièrement lumineux. Vous bénéficierez également d’un double garage. A l’étage, vous retrouverez un hall de nuit avec mezzanine, 4 chambres à coucher ainsi qu’une salle de bain avec baignoire et douche. Ce projet peut être entièrement modulable et personnalisable selon vos désirs Ce terrain + projet de construction est proposé au prix de 407.732,74 € hors TVA, frais d’architecte et droits d’enregistrement.** *Image non contractuelle **Le prix est à titre indicatif et pourra faire l’objet de modification en fonction de la personnalisation du projet Pour plus d’informations, Monsieur Mariani reste disponible du lundi au vendredi au 0475/23.62.76 durant les heures de bureau.
Type vastgoed Huis
Prijs 407.733
Aantal slaapkamers 4
Aantal badkamers 1