Te koop Huis

Beschrijving van   

Vergelijk realty's

Te koop Huis

Huis Huis Huis Huis Huis Huis Huis
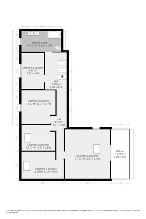
Cette belle maison offre 5 chambres, un bel espace de vie lumineux, ainsi qu’une cuisine ouverte avec coin dinatoire, idéale pour partager de bons moments en famille. Avec 2 salles d’eau, un garage avec atelier ou possibilité de bureau, elle s’adapte à tous vos besoins. Depuis la terrasse de 55m², profitez chaque soir d’un magnifique coucher de soleil sur la campagne avoisinante. Le tout sur un beau terrain, parfait pour les amateurs de nature et de plein air. Si certaines pièces méritent une remise au goût du jour, la maison est habitable rapidement. Un cadre de vie inspirant, un potentiel à exploiter ! Laissez libre cours à vos envies et façonnez cette maison à votre image. A visiter sans tarder ! Contactez-nous au 0486/97.87.00 pour plus visite
Type vastgoed Huis
Prijs 415.000
Bewoonbare opp. 324
Aantal slaapkamers 5
Aantal badkamers 1