Te koop Huis

Beschrijving van   

Vergelijk realty's

Te koop Huis

Huis Huis Huis Huis Huis Huis Huis Huis Huis Huis Huis Huis Huis Huis Huis Huis Huis Huis Huis Huis Huis
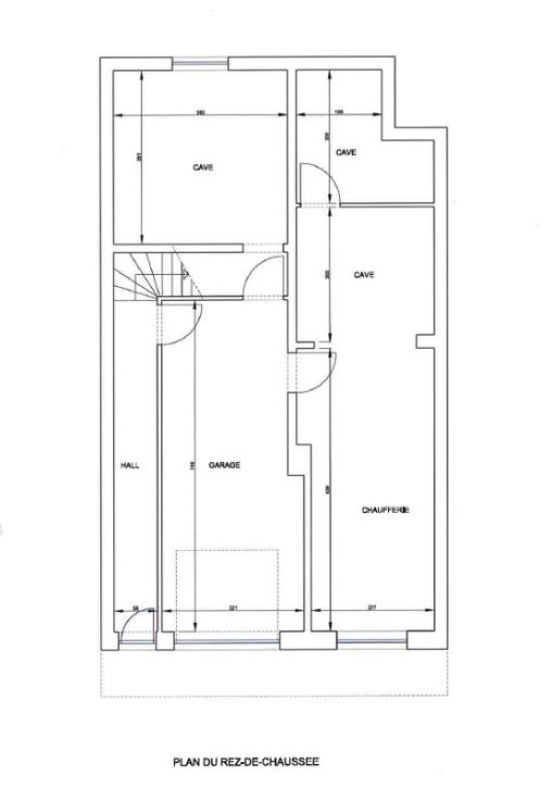
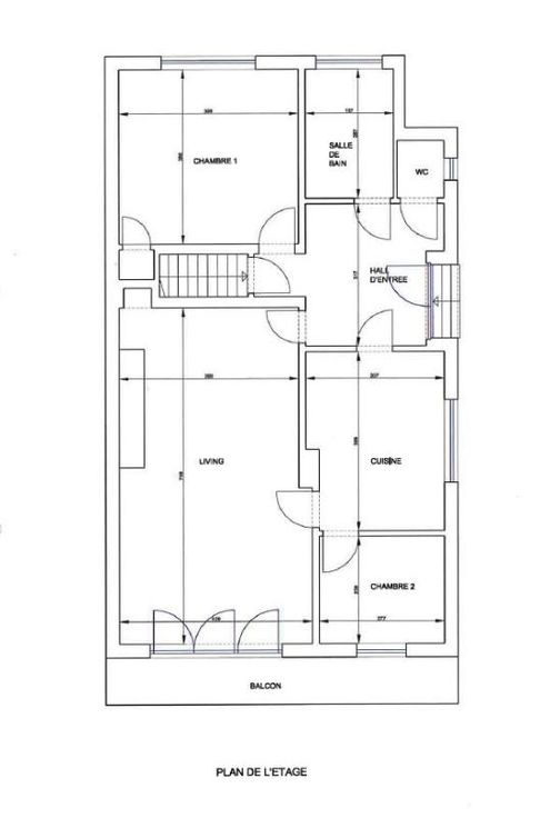
Maison de type bel-étage avec 2chambres, jardin, passage latéral et garage. Située dans une rue calme et proche des autoroutes, la maison est érigée sur une parcelle (section C numéro 288/RP0000) d'une contenance de 386m². D'une superficie habitable de +- 80m², la maison se compose comme suit : Au RDC: un hall d'entrée, un garage, un local chaufferie et des caves. Au 1er: Un hall d'entrée accessible par le rez-de-chaussée ou par le passage latéral, un living de 30m², une cuisine non équipée (12m²), une salle de bain (5,5m²), un WC séparé et deux chambres dont une petite (15m² et 6m²). Au 2ème: combles potentiellement aménageables. Un jardin de +- 230m² complète l'ensemble de ce bien avec un abri de jardin dans le fond de la parcelle. Lien v : https://www.klapty.com/tour/AuY0h4zg5S. Aspects techniques : châssis en PVC, double vitrage, volets, chauffage central au mazout (fonctionnement non garanti), électricité non conforme. PEB F (463kWh/m².an) n°20170928003614. RC non indexé : 686,00€. Le bien se situe en zone C’ du plan d’exposition au bruit (PEB) et en zone B du plan de développement à long terme (PDLT). Plan de secteur : Zone d'activité économique mixte. L'Etude Notariale se tient à votre disposition pour toutes informations complémentaires. FAIRE OFFRE A PARTIR 145.000,00€, sous réserve d'acceptation par le vendeur.Date limite pour le dépôt des offres : 20 mars. Visites sur RDV avec Md RIGA au 04/234.92.63 ou par mail (mathilde.riga.353186@belnot.be).
Type vastgoed Huis
Prijs 145.000
Bewoonbare opp. 80
Aantal slaapkamers 2
Aantal badkamers 1