Te koop Huis

Beschrijving van   

Vergelijk realty's

Te koop Huis

Huis Huis Huis Huis Huis Huis Huis Huis Huis Huis Huis Huis Huis Huis Huis Huis Huis Huis Huis Huis Huis Huis Huis Huis Huis
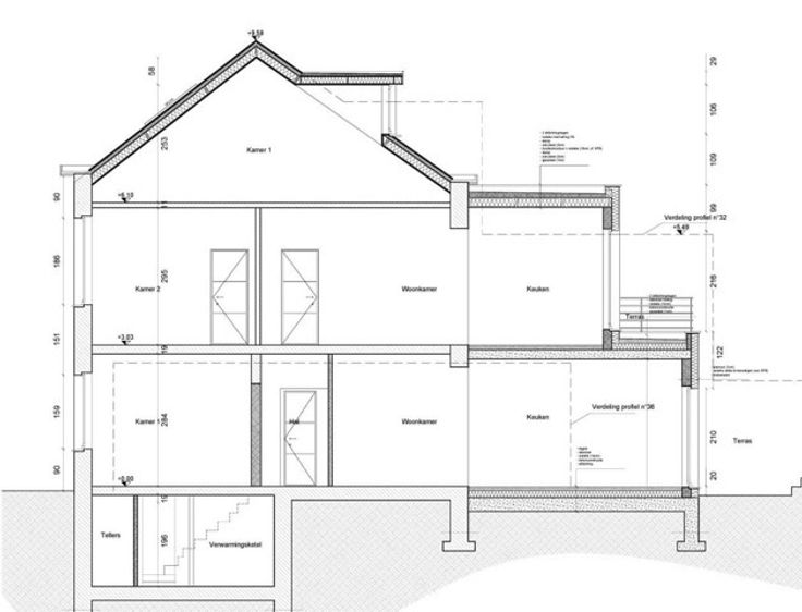
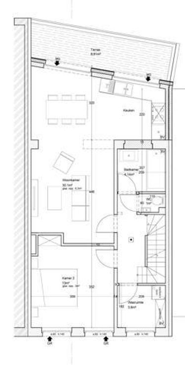
Situé à l'entrée de Bruxelles, ensemble immobilier en cours de rénovation, proche de toutes commodités urbaines. Actuellement état de gros œuvre couvert fermé (châssis triple vitrage). Font également partie de la vente les éléments de cuisine, la pompe à chaleur et le carrelage. Celui-ci se compose : REZ DE CHAUSSEE: Appartement composé d'un hall d'entrée, wc séparé, salle d'eau (douche), une chambre, grand espace séjour avec espace pour une cuisine ouverte, buanderie, terrasse (+/- 12m²) ,accès au jardin et un garage à construire. Superficie pour cet appartement: +/- 76m² ETAGE : Duplex composé au 1étage : hall avec escalier et vestiaire, un wc séparé, une chambre, un bureau, une salle d'eau (douche), un espace séjour avec espace pour une cuisine ouverte, balcon. Au seconde et dernier étage : une grande chambre. Superficie du duplex (1er er 2ème étage) : +/- 105m² Les éléments présent dans le bien comme: carrelage, cuisine, pompe à chaleur,.. font partie de la vente. Contactez nous afin d'obtenir plus de renseignements ou de planifier une visite en appelant notre agence au 0472/60.60.69 ou par mail à info@lylas-realestate.be!
Type vastgoed Huis
Prijs 390.000
Aantal slaapkamers 3
Aantal badkamers 2