Te koop Bouwgrond met BOUWVERGUNNING

Beschrijving van   

Vergelijk realty's

Ligging
Montleban 72
6670 Gouvy

Contactgegevens
+32498053178
+32494282638
E-mail deze adverteerder
BEWAREN
DOORSTUREN

Te koop Bouwgrond met BOUWVERGUNNING

Bouwgrond met BOUWVERGUNNING Bouwgrond met BOUWVERGUNNING Bouwgrond met BOUWVERGUNNING Bouwgrond met BOUWVERGUNNING Bouwgrond met BOUWVERGUNNING Bouwgrond met BOUWVERGUNNING Bouwgrond met BOUWVERGUNNING Bouwgrond met BOUWVERGUNNING
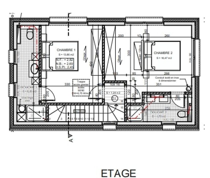
Bouwgrond van 20,52 are met BOUW VERGUNNING toegekend in oktober 2023, gelegen in het charmante dorp Montleban, in de onmiddellijke nabijheid van Luxemburg, Houffalize en Achouffe! Wij hebben besloten het project niet te bouwen om persoonlijke redenen. Het project biedt, dankzij zijn configuratie, de mogelijkheid om een eengezinswoning of een gite voor 4 personen te bouwen, met een energieklasse A+ en een bewoonbare oppervlakte van ongeveer 150 m² + een dubbele carport. Doordat het een zelfdragende constructie is, biedt het talloze mogelijkheden om de ruimtes naar eigen wens in te delen! Een ander voordeel: wij hebben het gebouw zo gepositioneerd dat er in de toekomst een tweede woning kan worden gebouwd, aangezien het perceel een straatbreedte van 36 meter heeft. Bovendien bevindt het zich in een rustige en groene omgeving, met een zuidwestelijk georiënteerde tuin die grenst aan een beek van ongeveer 2 meter breed, wat een uitzonderlijke meerwaarde biedt. Dankzij de positionering van de woning, ruim boven het waterniveau, is er geen enkel risico op overstroming. (De vloer van de tuinverdieping ligt 2,08 meter hoger dan de bodem van het terrein). Voor meer informatie of om contact op te nemen: 📞 +32 (0)494 28 26 38 📞 +32 (0)498 01 53 78
Type vastgoed Grond
Prijs 109.000