Te koop Bouwgrond

Beschrijving van   

Vergelijk realty's

Te koop Bouwgrond

Bouwgrond Bouwgrond Bouwgrond Bouwgrond Bouwgrond Bouwgrond Bouwgrond Bouwgrond Bouwgrond Bouwgrond
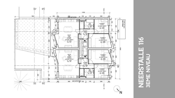
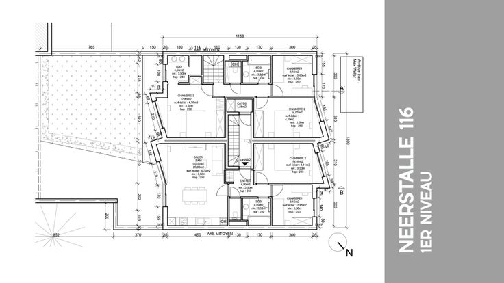
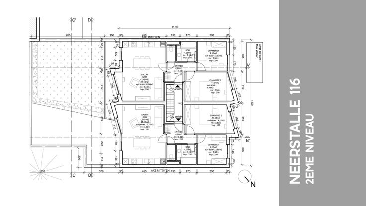
Forest – BE WELCOME PRESENTE (IPI 516792) Permis octroyé PU 27274 obtenu le 13 janvier 2022 pour la construction après démolition et assainissement d'un immeuble résidentiel de 502 m² habitables de 6 appartements et la transformation d'un atelier de 294 m² en bureau ou autre espace. Composition du futur immeuble Rez-de-chaussée Côté rue : locaux techniques, caves, espaces communs (poubelles, vélos, poussettes, entretien), buanderie Côté jardin : séjour du duplex 3 chambres (131 m² suivant PEB) avec accès à un jardin de 53 m² Servitude de passage vers l'atelier en intérieur d’îlot 1er étage Niveau supérieur du duplex 3 chambres Appartement 2 chambres de 74 m² 2e et 3e étages 4 appartements 2 chambres (74 m² chacun), à raison de 2 par étage Atelier / Bureau Espace de 294 m² en intérieur d’îlot, à transformer en bureau ou autre usage Remarque : Pas de parking prévu – Assainissement de la parcelle (10 m³ de terre à retirer) - Plans d’exécution de l’atelier d’architecture OF7 Dossier d’appel d’offre: métré, étude de stabilité, étude PEB, étude de sol, étude de pollution, plans de détails -- possibilité d'achat en parts de société Date début des travaux : 16/09/2024 Visite virtuelle du site : https://youtu.be/kWJyLgKlVD4 Pour toute information ou une visite, contactez Nathalie 0495630929
Type vastgoed Grond
Prijs 620.000