Te koop WONING MET 3 STUDIO'S

Beschrijving van   

Vergelijk realty's

Te koop WONING MET 3 STUDIO'S

WONING MET 3 STUDIO'S WONING MET 3 STUDIO'S WONING MET 3 STUDIO'S WONING MET 3 STUDIO'S WONING MET 3 STUDIO'S WONING MET 3 STUDIO'S WONING MET 3 STUDIO'S WONING MET 3 STUDIO'S WONING MET 3 STUDIO'S WONING MET 3 STUDIO'S WONING MET 3 STUDIO'S WONING MET 3 STUDIO'S WONING MET 3 STUDIO'S
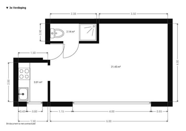
Dit pand wordt op internet verkocht van 24/03/2025 tot 01/04/2025. Deels verhuurd en gunstig gelegen. Op een uitstekende locatie, midden in het bruisende centrum van Antwerpen-Borgerhout, bieden wij deze woning aan die bestaat uit 3 studio’s. Deze woning biedt een groot potentieel voor zowel beleggers als kopers die op zoek zijn naar een rendabele investering of een renovatieproject. Elke studio heeft een praktische indeling en is voorzien van de nodige basisvoorzieningen en een ondergrondse berging. Dankzij slimme ingrepen en een aantal energiezuinige renovaties kan deze woning aanzienlijk in waarde stijgen en aantrekkelijker worden voor zowel huurders als kopers. Bent u op zoek naar een opbrengsteigendom met veel potentieel en uitstekende kheden? Dan is deze woning precies wat u zoekt! Neem contact op voor meer informatie of om een bezichtiging in te plannen. Vg, Wg, Vkr EPC : studio bus 001: certificaatnummer 20250126-0003259938-RES-2 - 493 kWh/(m² jaar) (energielabel E) - studio bus 101: certificaatnummer 20250126-0003259941-RES-2 - 385 kWh/(m² jaar) (energielabel D) - studio bus 201: certificaatnummer 20250126-0003261075-RES-2 - 448 kWh/(m² jaar) (energielabel E) G score: C P score: C
Type vastgoed Huis
Prijs 110.000
Aantal slaapkamers 3
Aantal badkamers 3