Te koop Halfopen instapklare nieuwbouw - energiela...

Beschrijving van   

Vergelijk realty's

Te koop Halfopen instapklare nieuwbouw - energielabel A

Halfopen instapklare nieuwbouw - energielabel A Halfopen instapklare nieuwbouw - energielabel A Halfopen instapklare nieuwbouw - energielabel A Halfopen instapklare nieuwbouw - energielabel A Halfopen instapklare nieuwbouw - energielabel A Halfopen instapklare nieuwbouw - energielabel A
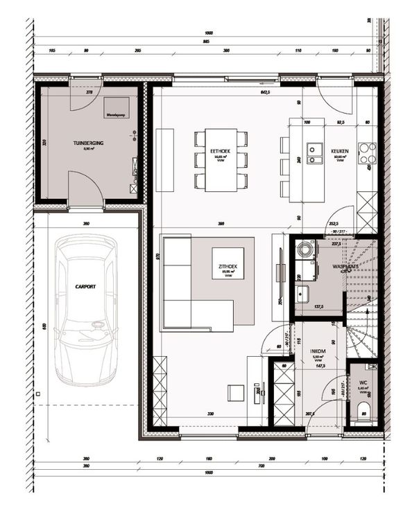
In de Vlasschaard in Heule (Kortrijk) realiseert Dumobil in het nieuwbouwproject Lijsternest deze moderne halfopen nieuwbouw (lot 15) met zadeldak. Je komt via de inkomhal binnen in een open leefruimte met aansluitend een kwalitatief ingerichte keuken mét eiland. Er zijn 3 slaapkamers en een vaste trap richting een extra zolderkamer. De badkamer heeft een dubbele wastafel, douche én bad. De toiletten zijn apart. Duurzaam uitgerust met een geothermische warmtepomp, vloerverwarming, zonnepanelen en een ventilatiesysteem type D. Er is een voortuintje met oprit. Aan de carport is een aangebouwde berging voorzien waar je doorheen kan lopen tot in de tuin. De woning wordt door ons na aankoop nog verder instapklaar afgewerkt naar jouw wens. Hier geniet je van de Dumobil-kwaliteit. Bekijk de all-in prijs op onze website met echt álle nodige kosten en weet zo meteen waar je uit komt: www.dumobil.be/nl/woonprojecten/projecten/lijsternest-heule-kortrijk En/of contacteer onze bouwadviseur Sam Borrey voor meer info: 0483/21.01.33 | sam@dumobil.be Renovatieplicht: onbekend
Type vastgoed Huis
Prijs 450.900
Bewoonbare opp. 181
Aantal slaapkamers 3
Aantal badkamers 1