Te koop Net gerenoveerde gezinswoning

Beschrijving van   

Vergelijk realty's

Te koop Net gerenoveerde gezinswoning

Net gerenoveerde gezinswoning Net gerenoveerde gezinswoning Net gerenoveerde gezinswoning Net gerenoveerde gezinswoning Net gerenoveerde gezinswoning Net gerenoveerde gezinswoning Net gerenoveerde gezinswoning Net gerenoveerde gezinswoning Net gerenoveerde gezinswoning Net gerenoveerde gezinswoning Net gerenoveerde gezinswoning Net gerenoveerde gezinswoning Net gerenoveerde gezinswoning Net gerenoveerde gezinswoning Net gerenoveerde gezinswoning Net gerenoveerde gezinswoning Net gerenoveerde gezinswoning Net gerenoveerde gezinswoning Net gerenoveerde gezinswoning Net gerenoveerde gezinswoning Net gerenoveerde gezinswoning Net gerenoveerde gezinswoning Net gerenoveerde gezinswoning Net gerenoveerde gezinswoning Net gerenoveerde gezinswoning Net gerenoveerde gezinswoning Net gerenoveerde gezinswoning
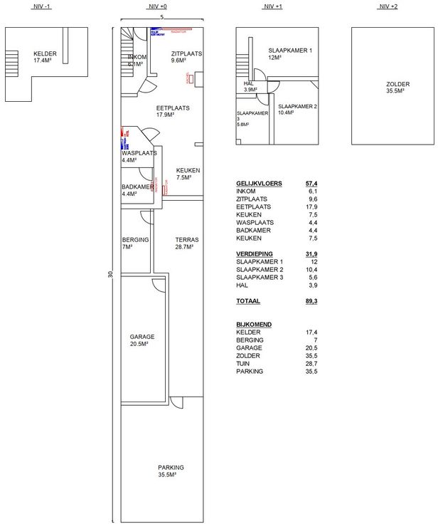
In het centrum van Muizen, vlakbij natuur, openbaar vervoer (station Muizen), Planckendael en op fietsafstand van Mechelen centrum, vind je deze perfect gerenoveerde gezinswoning. Via de inkomhal met trap, bereik je de lichtrijke, open leefruimte (met kachel). Deze sluit aan op de eetplaats en geïnstalleerde keuken met inductie kookvuur, vaatwas en alle moderne comfort. Vanuit de keuken op het gelijkvloers heb je toegang tot een zonnige stadstuin met een aparte wasruimte, en aansluitend een grote garage voor 1 wagen, meerdere fietsen en stockage van ander hobby materialen. Ook nog op het gelijkvloers vind je de badkamer met douche en 2 lavabo’s terug, met aansluitend toilet met lavabo en kastruimte voor het opbergen van stofzuiger, strijkplank en ander kuismateriaal. Op de eerste verdieping bevinden zich de 3 lichtrijke slaapkamers. Elke slaapkamer heeft tenminste 1 raam met geïnstalleerd vliegenraam. De woning is voorzien van een droge kelder, nieuwe cv ketel (2022) op gas, een zolder met geïsoleerde vloer, nieuw raamwerk geplaatst in 2022 met hoogrendementsglas, volledig vernieuwde en conforme elektriciteit. Achter de garage is er eveneens een autostaanplaats. Je kan de woning dus zowel langs de straatkant als langs achter betreden, gemakkelijk voor de boodschappen. Deze instapklare en praktische woning is rechtstreeks te koop via de eigenaar. Elk bod wordt overwogen na afloop van de kijkmomenten op 22 februari en 1 maart, telkens tussen 10u en 16u, op afspraak.
Type vastgoed Huis
Prijs 366.000
Bewoonbare opp. 90
Aantal slaapkamers 3
Aantal badkamers 1