Te koop Huis

Beschrijving van   

Vergelijk realty's

Te koop Huis

Huis Huis Huis Huis Huis Huis Huis Huis Huis Huis Huis Huis
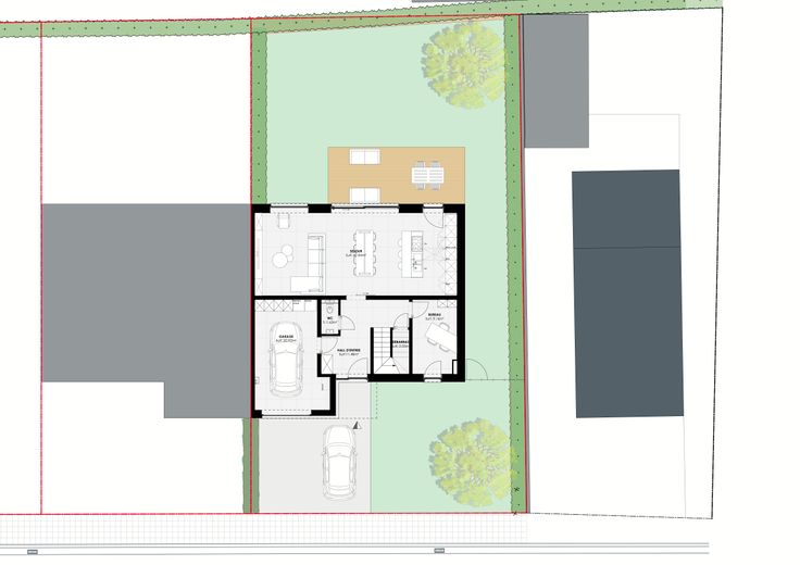
TipTop Building vous propose cette superbe habitation trois façades à la rue de Familleureux à Manage. L’habitation fait partie d’un projet groupé de quatre habitations similaires. Elle dispose d’une surface utile de 180m² répartie sur trois niveaux (Garage, bureau, 4 chambres, 2 salles d’eau). Rez-de-chaussée : Hall d’entrée généreux (11.48m²), W.C., Bureau/salle de jeu (9.16m²), Débarras sous l’escalier, garage spacieux (20.11m²), beau séjour ouvert sur le jardin (47,84m²) 1er étage : Hall de nuit, salle de bain douche+baignoire+wc (9.16m²), chambre 1 (15,35m²), chambre 2 (15,35m²), chambre 3 (15,35m²). 2ème étage : Hall de nuit, salle de douche (4.80m²), chambre 4 (20.79m²), grenier/local technique. Extérieur : L’habitation dispose d’un bel espace en façade avant permettant de garer deux véhicules. Elle dispose également d’un accès latéral vers le jardin. L’habitation est vendue en gros œuvre fermé couvert. Les finitions intérieures et extérieures sont à réalisées. Le propriétaire se réserve le droit exclusif d'apprécier la hauteur et la qualité des offres. Les informations publiées sur ce site ont un caractère indicatif et non contractuel. Infos et visites sur RDV auprès du bureau d’architecture Ozora design au 0474/49.43.14 – info@zoradesign.com
Type vastgoed Huis
Prijs 435.000
Bewoonbare opp. 184
Aantal slaapkamers 4
Aantal badkamers 2