Te koop Bouwgrond

Beschrijving van   

Vergelijk realty's

Te koop Bouwgrond

Bouwgrond Bouwgrond Bouwgrond Bouwgrond Bouwgrond Bouwgrond Bouwgrond Bouwgrond
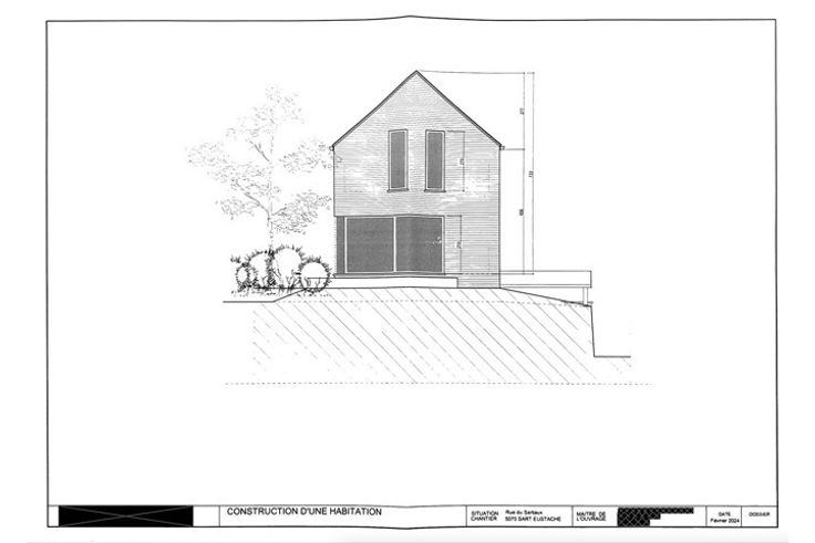
+++ Renseignements complémentaires sur demande au 0470/34.87.93 +++ PLUS D'INFOS SUR WWW.DECA-IMMOBILIER.BE - REFERENCE DU BIEN : 2040 +++ Opportunité à saisir +++ Terrain à bâtir de 4ares 70centiares offrant une largeur de +/- 44m et une profondeur de +/-19m - Un projet complet de construction qui n'a pas été introduit mais qui peut servir d'exemple est disponible. Raccordement : eau, électricité, égouttage - Parcelle cadastrée section A numéro 353 L P0000 - RC : 3 Euro - FAIRE OFFRE A PARTIR DE 59.000 Euros, sous réserve d'acceptation des vendeurs - Renseignements complémentaires sur demande au 0470/34.87.93
Type vastgoed Grond
Prijs 49.000