Te koop Huis

Beschrijving van   

Vergelijk realty's

Te koop Huis

Huis Huis Huis Huis Huis Huis Huis Huis Huis Huis Huis Huis Huis Huis Huis Huis Huis Huis Huis
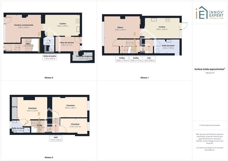
Sorry er is geen nederlandse vertaling beschikbaar. INNOV'EXPERT immobilière vous invite à venir découvrir cette belle maison de commerce, idéalement située à proximité directe de toutes les commodités et du centre ville de Namur. Elle vous séduira par son agencement idéal et son potentiel d'aménagement. Un bel espace extérieur terminera de vous convaincre ! Composition au rez-commercial : surface principale de +/- 20 m², pièce cuisine, espace de stockage, pièce de service, salle de bain avec WC. Composition 1er étage : hall, pièce séjour, pièce cuisine, salle de douche avec WC, terrasse. Composition 2ème étage : hall, 3 chambres, salle de douche avec WC. Côté équipements et techniques : chauffage central au mazout et possibilité de raccordement au gaz de ville, châssis PVC avec double vitrage en partie, toiture en ardoises, tout à l'égout, .. Belle opportunité à ne pas manquer, n'hésitez pas à nous contacter au 081 84 90 57.
Type vastgoed Huis
Prijs 239.000
Bewoonbare opp. 140
Aantal slaapkamers 3
Aantal badkamers 3