Te huur Duplex

Beschrijving van   

Vergelijk realty's

Te huur Duplex

Duplex Duplex Duplex Duplex Duplex Duplex Duplex Duplex Duplex Duplex Duplex Duplex Duplex Duplex Duplex Duplex Duplex Duplex Duplex Duplex Duplex
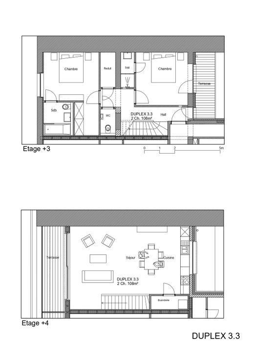
Diensten: Supermarkt, Ziekenhuis, School: m, Sport club, Bus: m . Grond: Gelamineerde bevloering, Betegelen . : Total énergie primaire: 11496 kwh/an, EPC certificaat nb., : 21 Kg Co2m²an, : 105 Kwh, . Andere uitrusting: Gepantserde deur, Dubbele beglazing . Elektrische uitrusting: Thermostaat, Telefoon, Intercom, Kabel TV . Uitrusting van keuken: Keuken meubelen, Vaatwasmachine, Wasemkap, Koelkast, Oven, Keramisch kookvlak fornhuis, Diepvrieskast . Verschillende kamers: Fietskamer, 2 Terras, Berghok, Washok
Type vastgoed Appartement
Prijs 1.800
Bewoonbare opp. 110
Aantal slaapkamers 2
Aantal badkamers 1