Te koop Huis

Beschrijving van   

Vergelijk realty's

Te koop Huis

Huis Huis Huis Huis Huis
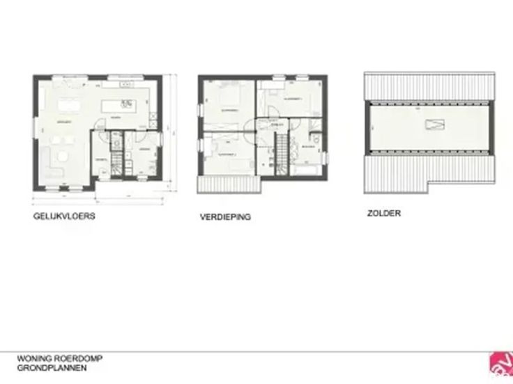
Uitstekend gelegen perceel bouwgrond in het landelijke Lubbeek op de Gellenberg Lot 2A. Deze grond van 8a51ca is gelegen vlakbij winkels, scholen en openbaar vervoer. De bouwgrond is zuidwest georiënteerd en heeft een prachtig zicht op natuurgebied! Aan de linkerzijde loopt een beekje en achteraan in het natuurgebied is er wadi aangelegd om overtollige regen op te vangen. De voorgestelde landelijke woning (max gevelbreedte 9m37!) te voorzien heeft een oppervlakte van 167m2 + 35m2 zolder. Er is een eet- en zithoek voorzien en een ruime keuken met berging. Boven zijn er alvast 3 slaapkamers en een badkamer met bad/douche en een technische ruimte. Alle keuzes i.v.m. de afwerking van de woning zijn naar wens bespreekbaar. Ook het ontwerp van de woning is slechts een voorstel en kan volledig met jou op maat uitgewerkt worden. Vanaf casco afwerking biedt de woning je alvast alle zekerheden en garanties en van daaruit kan je zorgeloos verder afwerken. Een volledig afgewerkte woning is natuurlijk ook mogelijk! Ivm voorschriften qua fundering is er reeds €25 000 in budget opgenomen, dit wordt in functie van de sondering achteraf herbekeken. Dit project wordt aangeboden i.s.m. AVL. € 593 000 incl. alle kosten op grond en constructie
Type vastgoed Huis
Prijs 485.000
Aantal slaapkamers 3
Aantal badkamers 1