Te koop Bouwgrond - VILLA - Op 400m van het station

Beschrijving van   

Vergelijk realty's

Te koop Bouwgrond - VILLA - Op 400m van het station

Bouwgrond - VILLA - Op 400m van het station Bouwgrond - VILLA - Op 400m van het station Bouwgrond - VILLA - Op 400m van het station Bouwgrond - VILLA - Op 400m van het station Bouwgrond - VILLA - Op 400m van het station Bouwgrond - VILLA - Op 400m van het station Bouwgrond - VILLA - Op 400m van het station Bouwgrond - VILLA - Op 400m van het station Bouwgrond - VILLA - Op 400m van het station
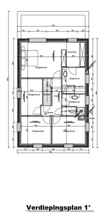
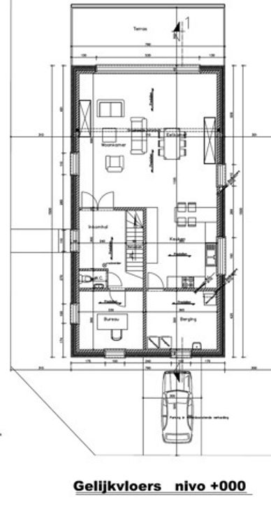
Te koop: bouwgrond van 4a54ca, gelegen in een rustige wijk en op wandelafstand van het station van Zellik. Er werd in 2022 een vergunning verleend voor de bouw van een open bebouwing met onder andere: 4 slaapkamers, waaronder een master suite 2 badkamers Bodemonderzoek, vergunning en plannen beschikbaar op aanvraag. Uitstekende ligging! Voor meer informatie, contacteer ons: perez@century21homeconsult.be 0494/73.07.55
Type vastgoed Grond
Prijs 259.000