Te huur Commercieel pand

Beschrijving van   

Vergelijk realty's

Te huur Commercieel pand

Commercieel pand Commercieel pand Commercieel pand Commercieel pand Commercieel pand Commercieel pand Commercieel pand Commercieel pand Commercieel pand Commercieel pand Commercieel pand Commercieel pand Commercieel pand
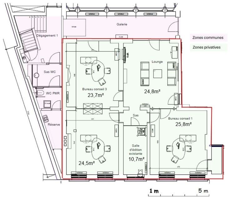
Sorry er is geen nederlandse vertaling beschikbaar. Namur (Saint-Servais) : Situé à 2 pas de la gare et du centre-ville, dans un magnifique bâtiment de maître accessible aux PMR, avec un parc privatif de 15 ares, 4 lumineux bureaux aménagés avec goût au rez-de-chaussée pour un total de 110 m² . Les 4 bureaux ont une surface avoisinant les 25m² chacun et 1 réduit de rangement de 10m². Le bloc sanitaire est commun avec 2 autres bureaux. Possibilité d’avoir une entrée indépendante. Opportunité de louer meublé. Parking gratuit à proximité immédiate et possibilité de places de parking privées. Parking vélos. Les bureaux sont climatisés. Loyer : 1.900 € par mois + 700 de charges, comprenant la connexion internet, l’accès à une imprimante/scanner professionnelle A4/A3 et la possibilité d’avoir 1 ligne téléphonique directe. Des salles de réunion sont disponibles à la location dans le bâtiment. Informations et visites sur rendez-vous auprès de l'Immobilière Gillet au 085/71.31.76.
Type vastgoed Commercieel
Prijs 1.900