Te koop Huis

Beschrijving van   

Vergelijk realty's

Te koop Huis

Huis Huis Huis Huis Huis Huis Huis Huis Huis Huis Huis Huis Huis Huis
Sous-Option
Type vastgoed Huis
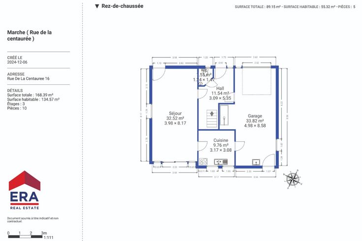
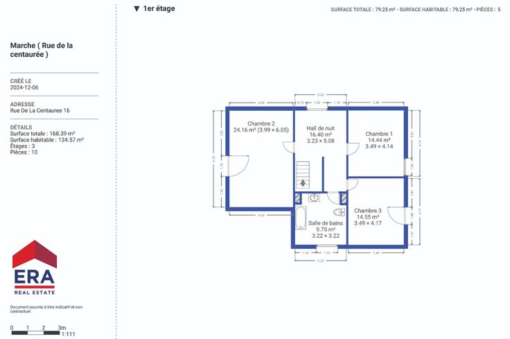
Prijs 250.000
Bewoonbare opp. 135
Aantal slaapkamers 3
Aantal badkamers 1