Te koop Huis

Beschrijving van   

Vergelijk realty's

Te koop Huis

Huis Huis Huis Huis Huis Huis Huis Huis Huis Huis Huis Huis
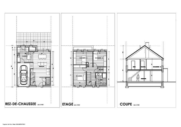
Ceci est une idée de projet, avec une liberté totale de modification pour construire la maison de vos rêves. Nous vous proposons ce projet sur un superbe terrain à bâtir, situé dans un cadre campagnard, dans le charmant village de Bolinne (Eghezée) Ce terrain possède une superficie de 667m², une façade de 17.5 mètres et une profondeur de 39 mètres. (Lot 3) L'emplacement de ce terrain est très avantageux, à seulement 1min d'un arrêt de bus et à moins de 5 minutes des commodités. De plus, l'accès à l'autoroute N91 est à moins de 3 minutes, ce qui permet de rejoindre Namur en un rien de temps. E411 à 10min pour rejoindre Bruxelles. Ce terrain vous est proposé avec un projet de construction d'une maison 3 façades. Description du projet proposé, Maison 3 façades de 120m2 : Ce modèle se compose d’un hall d’entrée accueillant, agrémenté d’un WC, un séjour lumineux, sublimé par une somptueuse baie vitrée offrant une vue imprenable sur votre futur jardin verdoyant. La cuisine sera fonctionnelle et conviviale. À l’étage, un hall de nuit vous guidera vers trois chambres, une buanderie et une salle de bain élégante, entièrement équipée d’une baignoire et d’une douche. Prix : terrain + projet de construction : 289 478€ Hors frais Le prix est donné à titre indicatif et pourra être modifié en fonction des ajustements apportés au projet. Pour plus de renseignements, nous restons disponibles durant les heures de bureau.
Type vastgoed Huis
Prijs 289.478
Bewoonbare opp. 120
Aantal slaapkamers 3
Aantal badkamers 1