Te koop Grond

Beschrijving van   

Vergelijk realty's

Te koop Grond

Grond Grond Grond Grond Grond Grond Grond Grond Grond Grond Grond Grond
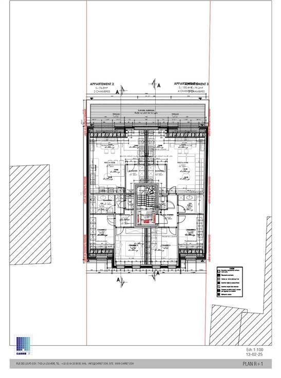
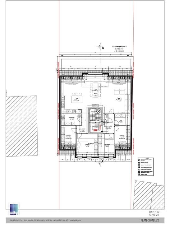
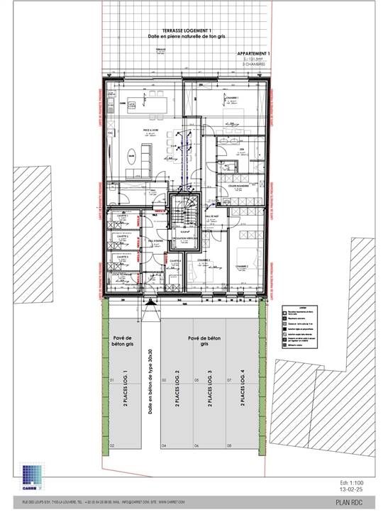
Sorry er is geen nederlandse vertaling beschikbaar. Opportunité à ne pas manquer ! Il s’agit en effet d’un projet à taille humaine visant la construction d’un immeuble de 4 appartements. Le prix comprend l’achat du terrain de +/- 10 ares 60 ca sur lequel le bâtiment va s’implanter, le permis délivré il y a peu, les plans d’architecte liés à la réalisation du projet, les frais d’architecte réglés jusqu’à l’obtention du permis ainsi que le bornage, la déclaration initiale PEB et l’essai de sol. Idéal pour différents types de profils : investisseur souhaitant réaliser les 4 appartements pour les revendre ensuite séparément ou pour les louer afin de s’assurer une vie un peu plus cool, idéal également pour un commerçant désirant construire l’immeuble et conserver le rez pour y aménager des bureaux ou un espace de travail (par exemple kiné, comptable, assureur…). Les 4 appartements sont répartis sur 3 niveaux : un au rez 3 chambres (+/- 131,5m2) avec jardin, 2 appartements au 1er étage 2 chambres (+/- 76,8 et 79,2 m2) avec terrasse et un appartement 4 chambres au dernier étage (+/- 150,4 m2) avec terrasse. Également une belle zone de parking à l’avant et 4 caves individuelles. Terrain plat et viabilisé (y compris le gaz de ville) et situé à quelques pas seulement de toutes les commodités (gare, centres sportifs, administration communale, restaurants, transports en communs, écoles…) donc possibilité de se passer aisément d’un véhicule. Terrain libre de suite qui n’attend plus
Type vastgoed Grond
Prijs 160.000