Te koop Huis

Beschrijving van   

Vergelijk realty's

Te koop Huis

Huis Huis Huis
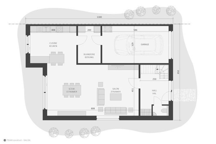
Rustig gelegen, NIEUWBOUWWONING HOB op prachtig groot perceel van 1090m². Deze woning voldoet aan de nieuwste energienormen. Driedubbele beglazing , warmtepomp met vloerverwarming, Ventilatie D, zonnepanelen etc. De afwerking kan nog in gezamenlijk overleg bepaald worden. Deze woning heeft 4 slaapkamers, waaronder de masterbedroom met ensuite badkamer en dressing. De afwerking van de tweede verdieping is ook mogelijk in optie. Contacteer ons voor alle verdere informatie via info@teamconstruct,be of 02/556.47.56. Prijs ALL IN (grond + registratie + notaris + woning + BTW + aansluitingskosten nutsvoorzieningen) bedraagt 609.888€
Type vastgoed Huis
Prijs 515.941
Bewoonbare opp. 206
Aantal slaapkamers 4
Aantal badkamers 2