Te koop Huis

Beschrijving van   

Vergelijk realty's

Te koop Huis

Huis Huis Huis Huis Huis
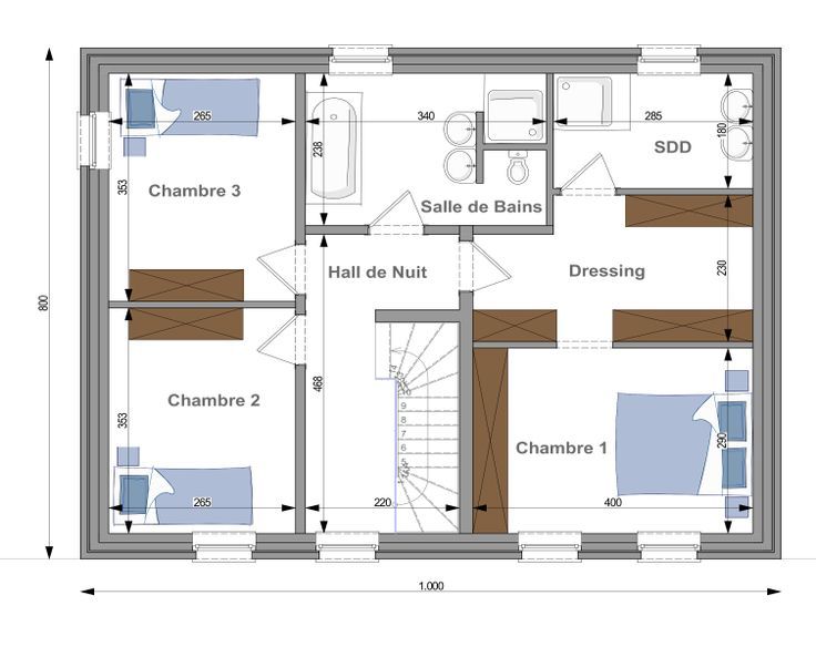
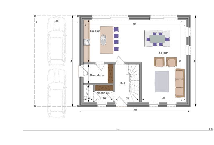
C'est dans le petit village de Fexhe le haut Clocher, proche de toutes commodités : Ikéa, pharmacies, écoles, centre commercial Roua et à 5 minutes de l'autoroute reliant les plus grandes villes, que Maisons Compère, vous propose cette magnifique maison 4 façades avec carport* en option. Sur un terrain de 6 ares, la maison se compose Au rez-de-chaussée, sur une surface totale de 80 m², d'une cuisine, d'un séjour ouvert, d'une buanderie et d'un carport* en option de 34m². A l'étage, vous trouverez 3 chambres dont une avec un dressing et 2 salles de bain. Prix : 339.000,00 € (comprenant le terrain + la construction hors frais)Intéressé par ce projet ? Nous restons joignable durant les heures de bureau au 0476/37 28 25 Le prix indiqué est ferme, définitif et sans indexation, les images sont non-contractuelles.
Type vastgoed Huis
Prijs 339.000
Bewoonbare opp. 160